Overslaan en ga direct naar de inhoud
TERUG NAAR OVERZICHT
Nachtegaallaan 3
Best
€ 1.250.000 k. k.
k. k.
Soort woning
Woonhuis
Oppervlakte
306 m² (2621 m²)
Aantal kamers
6 (5 slaapkamers)
Zoekcode
22871
Nachtegaallaan 3
Best

Karakteristiek wonen in het Koekoeksbos omringd door een groene omgeving - 'its all about the details!' Deze woning onderscheidt zich door haar veelzijdigheid, royale woonoppervlakte, vijf ruime slaapkamers, twee badkamers, inpandige garage en een achtertuin die optimale privacy biedt.

De woning is gelegen in de Bestse villawijk 'Koekoeksbos' aan een verkeersluwe en rustige straat. Het centrum van Best is binnen enkele minuten rijafstand te bereiken. Daarnaast bevindt een 18-holes golfclub zich op steenworpafstand en liggen diverse basisscholen en een middelbare school op korte afstand. Middels de nabij gelegen uitvalswegen A2, A50 en A58 situeert u zich in het middelpunt van de Brabantse stedenrij - Eindhoven, 's-Hertogenbosch, Tilburg.

Bouwjaar 1966
Inhoud woonhoud: ca 1.536 m³
Woonoppervlakte: ca 306 m²
Overige inpandige ruimte: ca 108 m²
Gebouw gebonden buitenruimte: ca. 33 m²
Externe bergruimte: ca. 31 m²
Verwarming: middels CV-combiketel (Nefit Topline, 2007); radiatoren en convectorverwarming
Isolatie: dakisolatie

Indeling:
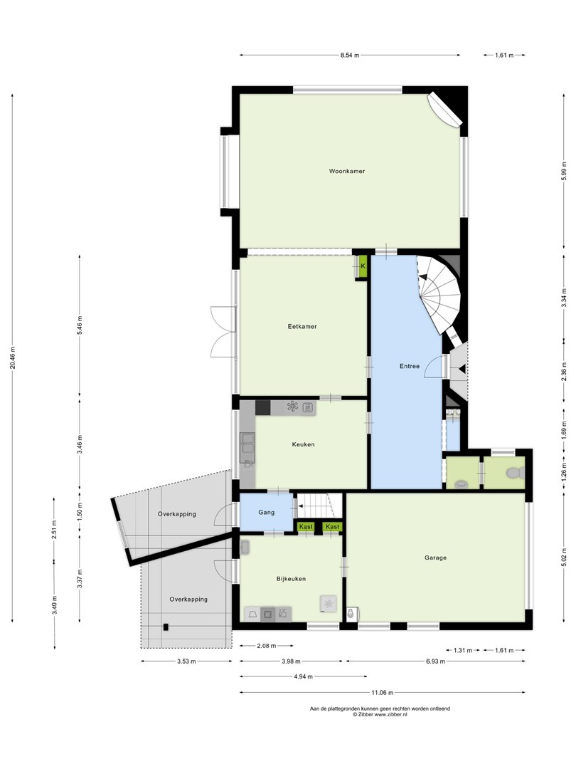
Begane grond
Bij binnenkomst wordt u direct verwelkomd door het eerste karakteristieke detail van deze woning; de klassieke dambordvloer in combinatie met de wenteltrap naar de eerste verdieping. Hier bevindt zich een elegante toiletruimte, voorzien van een authentieke raampartij. Aangrenzend aan de toiletruimte treft u een separate ruimte met fonteintje wat zorgt voor een chique indeling.

Stap binnen in het leefgedeelte. De living wordt omringd door riante raampartijen waardoor deze ruimte geniet van natuurlijk daglicht in overvloed. Dankzij de openslaande deuren staat het eetgedeelte in directe verbinding met het buitenleven en geniet u van een rustgevend uitzicht op de groene achtertuin. De living is verder voorzien van een tegelvloer en een sfeervolle schouw.

Aangrenzend de living situeert zich de keuken, met tevens een uitzicht op de achtertuin. De keuken is geplaatst in een L-opstelling en voorzien van een oven, magnetron, vaatwasser, koelkast en dubbele spoelbak.

Via de keuken bereikt u de hal die als knooppunt fungeert tussen de kelder, de bijkeuken en het royale terras met overkapping. In de bijkeuken bevinden zich de aansluitingen voor de wasmachine en droger, de deur naar de inpandige garage en tevens een toegangsdeur naar de achtertuin.

De inpandige garage is voorzien van een elektrische deur en biedt parkeerruimte voor twee auto's, maar leent zich ook uitstekend voor een beroep of hobby aan huis. Hier situeert zich tevens de CV-opstelling (Nefit Topline, 2007).

Eerste verdieping
De authentieke wenteltrap geeft u toegang tot de overloop van de eerste verdieping, de overloop geniet veel daglicht dankzij de charmante raampartij aan de bovenzijde van de trapopgang. De gehele eerste verdieping is voorzien van vloerbedekking, met uitzondering van de sanitaire ruimtes.

De master bedroom is gesitueerd aan de rechterzijde van de woning en beschikt over diverse inbouwkasten en dubbele openslaande deuren naar een zonnig Franse balkon. Vanuit de master bedroom heeft u toegang tot de semi badkamer ensuite, bestaande uit een ligbad, bidet en een dubbele wastafel met kastenruimte.

Daarnaast bevinden zich op deze verdieping nog vier volwaardige slaapkamers, waarvan er twee zijn uitgerust met een eigen wastafel. Aan de linkerzijde treft u een ruime slaapkamer met dubbele openslaande deuren naar het Franse balkon.

De tweede badkamer omvat een douchecabine en een wastafel, aangrenzend bevindt zich een separate toiletruimte en een inbouwkast.

Tweede verdieping
Middels een vaste trap in een van de slaapkamers aan de achterzijde bereikt u de zolder die zich uitstrekt over de volledige breedte van de woning.

Buitenleven
Bij betreding van de oprit blijft het nog mysterieus welke verrassing zich aan de achterzijde van de woning ontvouwt. De volledig omheinde achtertuin vormt een uniek tafereel, omlijst door volwassen bossage, een royaal gazon en een imposante eikenboom in het hart van het perceel. Ook qua privacy voldoet deze groene oase aan de hoogste verwachtingen. Middels de diverse toegangsdeuren, eigen achterom of de riante pui in de living betreedt u het royale terras van de woning die u diverse mogelijkheden biedt op het gebied van indeling, daarnaast beschikt het terras over een overkapping met warmtelampen.

In de achtertuin bevindt zich verder een stenen berging. Ook een extra houten berging geeft de mogelijkheid tot het opbergen van uw tuingereedschap.

Laat u verrassen door de ruimte en rust welke deze woning u te bieden heeft. Droom weg bij wat misschien wel uw toekomstige thuis zal zijn.
Overdracht
Type Te koop
Vraagprijs € 1.250.000 k. k.
Koopconditie k. k.
Aangeboden sinds 8 oktober 2025
Bouw
Soort object Woonhuis
Bouwperiode D
Woning type Vrijstaande woning
Inhoud
Woonoppervlakte 306 m²
Inhoud 1536 m³
Perceeloppervlakte 2621 m²
Indeling
Aantal kamers 6
Aantal slaapkamers 5
Aantal badkamers 2
Luxe kenmerken indoor Bijkeuken
Contact
Bedrijfsnaam Lelieveld Makelaardij Oirschot
Adres Rijkesluisstraat 19A
5688 EC Oirschot
Nederland
Telefoon 0499 - 577 400
Contactpersoon
Naam Ilse Coehorst
Telefoon 0499 - 577 400
Woningen in de buurt
Back to top