Overslaan en ga direct naar de inhoud
TERUG NAAR OVERZICHT
Beethovenstraat 90 3
Amsterdam
€ 1.285.000 k. k.
k. k.
Soort woning
Appartement
Oppervlakte
145 m² (0 m²)
Aantal kamers
4 (3 slaapkamers)
Zoekcode
100314
Beethovenstraat 90 3
Amsterdam

*ENGLISH TRANSLATION BELOW*

Welkom in dit royale, lichte en serene appartement van ca. 145 m² aan de Beethovenstraat 90-3.
Hier woont u stijlvol en comfortabel in het hart van Amsterdam-Zuid. Het appartement is met veel oog voor detail en hoogwaardige materialen afgewerkt, waardoor klassieke charme en modern wooncomfort naadloos samenkomen. Denk aan een elegante visgraat parketvloer, hoge plafonds met sierlijsten en een warme, rustige sfeer.

Met een riante living, uitnodigende eetkeuken, drie ruime slaapkamers, twee luxe badkamers en een zonnig west-balkon biedt deze woning alles voor wie royaal en ontspannen wil wonen op een absolute toplocatie.


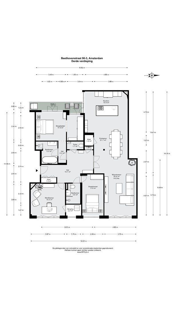
INDELING
Bij binnenkomst in het appartement valt direct de ruime en brede hal op, het centrale hart van de woning dat toegang biedt tot alle vertrekken.

Aan de voorzijde bevindt zich de lichte en royale living, die naadloos overgaat in de open eetkeuken. Het grote kookeiland, de moderne inbouwapparatuur en de doordachte indeling maken deze ruimte ideaal om te koken, te tafelen en gezellig samen te zijn. Vanuit de woonkamer openen dubbele deuren naar een charmant Frans balkon, perfect voor een ochtendkoffie in het zonnetje.

Het appartement profiteert van een uitstekende lichtinval: in de ochtend schijnt de zon aan de voorzijde, terwijl de middag- en avondzon de achterzijde verwarmt, waar het ruime balkon ligt. Dit balkon bevindt zich op de kopse kant van een grote binnentuin, waardoor je een fraai, weids uitzicht hebt en volop van de zon kunt genieten.

De woning beschikt over drie ruime slaapkamers. De master bedroom ligt rustig aan de achterzijde en is voorzien van een inloopkast, eigen badkamer met ligbad, inloopdouche, dubbele wastafel en toegang tot het zonnige west-balkon met uitzicht op de binnentuinen. De tweede badkamer, eveneens modern afgewerkt, heeft een inloopdouche, wastafel en tweede toilet. De twee overige slaapkamers zijn ruim en praktisch in te delen – ideaal voor kinderen, logees of als werkkamer. Verder zijn er een aparte wasruimte en een interne berging die zorgen voor extra comfort en opbergruimte.

Kortom: een heerlijk licht en royaal appartement met een slimme indeling en fijne balans tussen woon- en slaapgedeelte.


LIGGING EN BEREIKBAARHEID
De Beethovenstraat is één van de meest geliefde straten van Amsterdam-Zuid. Hier vind je een breed aanbod aan luxe winkels, gezellige koffiezaken, boetieks en goede restaurants, allemaal letterlijk om de hoek. Ook de Zuidas, het Museumplein, het Beatrixpark en het Vondelpark liggen op loop- of fietsafstand.

Qua bereikbaarheid zit je hier uitstekend: Station Zuid (met trein, metro en Noord/Zuidlijn) ligt op slechts enkele minuten afstand, en met de auto ben je via de ring A10 snel de stad uit. Daarnaast rijden er diverse tram- en busverbindingen in de directe omgeving, zodat ook andere delen van de stad eenvoudig bereikbaar zijn.

Al met al een rustige en stijlvolle woonomgeving met alle voorzieningen binnen handbereik én uitstekende verbindingen met de rest van de stad en daarbuiten.


BIJZONDERHEDEN
- Gelegen aan de geliefde Beethovenstraat
- Monumentaal pand met oppervlakte van ca. 145 m²
- Actieve Vereniging van Eigenaren met een positief reservefonds en Meerjaren Onderhoudsplanning (MJOP)
- Maandelijkse VVE bijdrage van circa € 373,- (exclusief voorschot stookkosten)
- Maandelijkse voorschot stookkosten van circa € 145,23
- De erfpachtcanon is € 2.246,12 en wordt jaarlijks geïndexeerd. Het voortdurende tijdvak eindigt op 15 april 2063
- Eeuwigdurende erfpacht vanaf 16 april 2063 vastgeklikt
- De woning is aan de straatzijde voorzien van dubbel glas
- Woonkamer tijdens verbouwing vergroot en stijlvol verbonden met keuken, voor een royale en open leefruimte
- Living voorzien van plafondventilator
- Verwarming via blokverwarming
- Kookeiland met inbouw keukenapparatuur
- Slaapkamer voorzien van airconditioning
- Ensuite badkamer en kledingkast
- Zonnig west-balkon op kopse kant van grote binnentuin
- Oplevering in overleg
- Verkoop onder voorbehoud gunning verkoper
- Notariskeuze voor koper, in Amsterdam, koopakte conform Amsterdams Ringmodel


Deze informatie is door ons met de nodige zorgvuldigheid samengesteld. Onzerzijds wordt echter geen enkele aansprakelijkheid aanvaard voor enige onvolledigheid, onjuistheid of anderszins, dan wel de gevolgen daarvan. Alle opgegeven maten en oppervlakten zijn indicatief. Koper heeft zijn eigen onderzoek plicht naar alle zaken die voor hem of haar van belang zijn. Met betrekking tot deze woning is de makelaar adviseur van verkoper. Wij adviseren u een deskundige (NVM-)makelaar in te schakelen die u begeleidt bij het aankoopproces. Indien u specifieke wensen heeft omtrent de woning, adviseren wij u deze tijdig kenbaar te maken aan uw aankopend makelaar en hiernaar zelfstandig onderzoek te (laten) doen. Indien u geen deskundige vertegenwoordiger inschakelt, acht u zich volgens de wet deskundige genoeg om alle zaken die van belang zijn te kunnen overzien. Van toepassing zijn de NVM voorwaarden.

___________


Welcome to this spacious, light-filled, and serene apartment of approximately 145 sqm at Beethovenstraat 90-3.
Here, you can live in style and comfort in the heart of Amsterdam-Zuid. The apartment is finished with great attention to detail and high-quality materials, seamlessly combining classic charm with modern living comfort. Think elegant herringbone parquet floors, high ceilings with decorative moldings, and a warm, tranquil atmosphere.

With a generous living room, inviting dining kitchen, three spacious bedrooms, two luxury bathrooms, and a sunny west-facing balcony, this home offers everything for those who wish to live spaciously and comfortably in an absolute prime location.


LAYOUT
Upon entering the apartment, you are immediately greeted by the spacious and wide hallway, the central heart of the home, providing access to all rooms.

At the front, you’ll find the bright and generous living room, which flows seamlessly into the open dining kitchen. The large kitchen island, modern built-in appliances, and thoughtful layout make this space ideal for cooking, dining, and spending quality time together. From the living room, double doors open onto a charming French balcony, perfect for enjoying a morning coffee in the sun.

The apartment benefits from excellent natural light: the front side receives morning sun, while the afternoon and evening sun illuminates the rear, where the spacious balcony is located. This balcony is positioned at the end of a large inner garden, offering a beautiful, unobstructed view and plenty of sunshine.

The home features three spacious bedrooms. The master bedroom, quietly located at the rear, includes a walk-in closet, en-suite bathroom with bathtub, walk-in shower, double sinks, and access to the sunny west-facing balcony overlooking the inner gardens. The second bathroom, also modernly finished, features a walk-in shower, sink, and a second toilet. The two additional bedrooms are generous and practical – perfect for children, guests, or a home office. Additionally, there is a separate laundry room and internal storage space, providing extra comfort and convenience.

In short: a wonderfully bright and spacious apartment with a smart layout and a perfect balance between living and sleeping areas.


LOCATION
Beethovenstraat is one of the most desirable streets in Amsterdam-Zuid. Here you will find a wide range of luxury shops, cozy cafés, boutiques, and excellent restaurants, all just around the corner. The Zuidas, Museumplein, Beatrixpark, and Vondelpark are also within walking or cycling distance.

In terms of accessibility, this location is excellent: Station Zuid (with train, metro, and North/South Line) is only a few minutes away, and by car, the A10 ring road provides quick access out of the city. Several tram and bus connections in the immediate vicinity also make other parts of Amsterdam easily reachable.

All in all, a peaceful and stylish living environment with all amenities within easy reach and excellent connections to the rest of the city and beyond.


DETAILS
- Located on the popular Beethovenstraat
- Monumental building, approximately 145 sqm
- Active Homeowners’ Association (VVE) with a positive reserve fund and Long-Term Maintenance Plan (MJOP)
- Monthly VVE contribution of approximately € 373,- (excluding heating costs)
- Monthyly advance heating costs of approximately € 145.23 per month
- Yearly ground lease (erfpacht) is € 2.246,12 and is indexed annually. The lease period ends on April 15, 2063
- Perpetual leashold as of April 16 2063 fixed
- Living room expanded during renovation and stylishly connected to the kitchen, creating a spacious and open living area
- Sunny west-facing balcony on the end side of a large courtyard garden
- Living room fitted with a ceiling fan
- The property features double glazing on the street side
- Heating via block heating
- Kitchen island with built-in appliances
- Master bedroom equipped with air conditioning
- Ensuite bathroom and walk-in closet
- Delivery/transfer date negotiable
- Sale subject to seller's approval
- Notary choice for buyer, in Amsterdam, purchase deed in accordance with the Amsterdam Ring Model


This information has been compiled by us with the necessary care. However, no liability is accepted on our part for any incompleteness, inaccuracy or otherwise, or the consequences thereof. All stated sizes and surfaces are indicative. The buyer has his own duty to investigate all matters that are important to him or her. With regard to this property, the broker is the advisor to the seller. We advise you to engage an expert (NVM) broker to guide you through the purchasing process. If you have specific wishes regarding the property, we advise you to make these known to your purchasing broker in good time and to conduct (or have conducted) independent research into them. If you do not engage an expert representative, you consider yourself to be expert enough by law to be able to oversee all matters that are important. The NVM conditions apply.
Overdracht
Type Te koop
Vraagprijs € 1.285.000 k. k.
Koopconditie k. k.
Aangeboden sinds 30 oktober 2025
Bouw
Soort object Appartement
Woningtype Bovenwoning
Bouwperiode 1931 - 1944
Inhoud
Woonoppervlakte 145 m²
Inhoud 460 m³
Indeling
Aantal kamers 4
Aantal slaapkamers 3
Aantal badkamers 2
Contact
Bedrijfsnaam Ter Haar Makelaars B.V.
Adres Jacob Obrechtstraat 39
1071 KG Amsterdam
Nederland
Telefoon 0205736000
Contactpersoon
Naam Bart ter Haar
Telefoon 020-5736000
Woningen in de buurt
Back to top