Overslaan en ga direct naar de inhoud
TERUG NAAR OVERZICHT
Keizersgracht 503
Amsterdam
€ 3.480.000 k. k.
k. k.
Soort woning
Woonhuis
Oppervlakte
466 m² (372 m²)
Aantal kamers
17 (9 slaapkamers)
Zoekcode
22215
Keizersgracht 503
Amsterdam

De Koopman - Een klassiek en Rijksmonumentaal grachtenpand bestaande uit een begane grond, eerste etage, twee bovengelegen verdiepingen en een zolder. De zwarte gevel, de klauwstukken die de halsgevel versieren geven het een elegante uitstraling. De stijlkamers en de Negentiende eeuwse trappenhuis geven de allure. Dit royaal opgezette huis bestaat uit een voorhuis en een licht achterhuis die zijn verbonden met een statig en prettig beloopbaar trappenhuis. Het pand is multifunctioneel te gebruiken.

De volledige woonbeleving is te ervaren op onze website of download ons magazine. *See English translation below *

Het pand
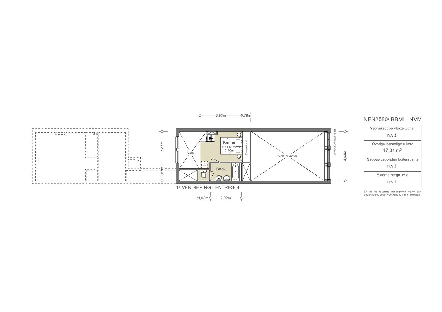
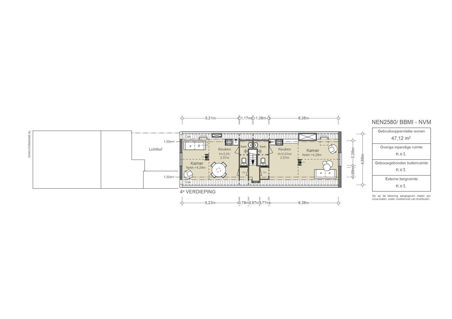
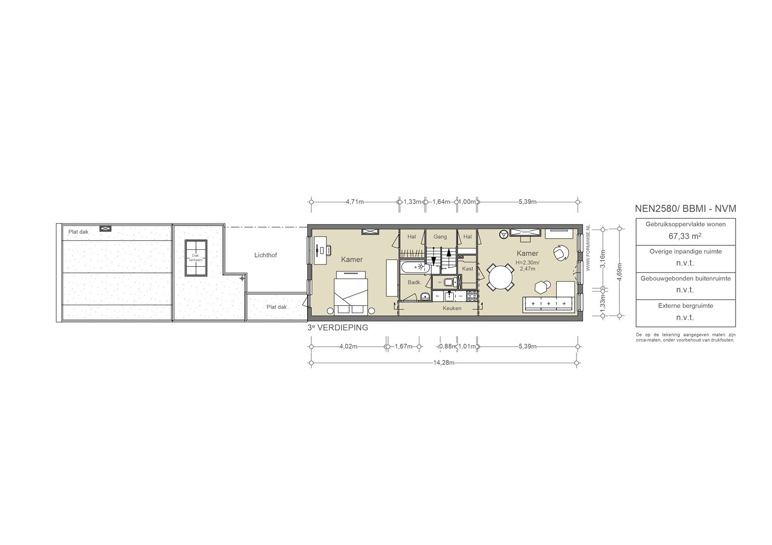
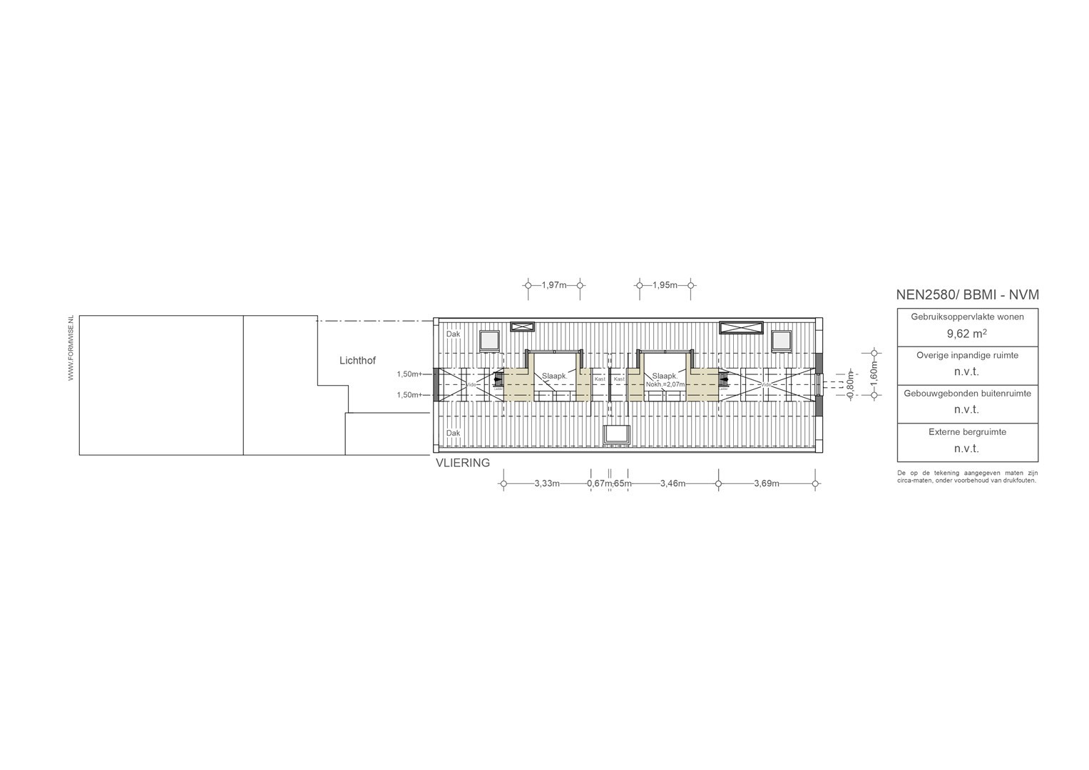
De totale oppervlakte is circa 466 m², die thans zijn verdeeld over vier min of meer zelfstandige wooneenheden. Het pand leent zich voor zelfbewoning, belegging of voor ontwikkeling. Dit fraaie monument ligt op uitstekende locatie en is gelegen op eigen grond. De diepe achtertuin is zonnig en wordt afgesloten met een dubbelbreed tuinhuis. De tuin heeft hier ook een dubbele perceelbreedte. Ten behoeve van renovatie en restauratie zijn er plannen en meerdere subsidieregelingen.

Buitenruimte
Keurtuin: Een oase in de binnenstad, omdat de tuinen tussen de Keizersgracht en Herengracht het breedst zijn en minst bebouwd. Daarbij ligt aan de achterzijde de Gouden Bocht met extra grote in imposante panden. De panden 503 en 505 zijn tot nu toe in gebruik geweest als een gemeenschappelijke tuin. Achter in de tuin staat een tuinhuis over de breedte van de twee percelen. Conform de huidige erfafscheiding worden de percelen kadastraal van elkaar gesplitst. Het tuinhuis wordt verkocht met nummer 503 en een stuk van de tuin van 505. De tuin zal dan ca. 150 m² groot worden.

Buurtgids
Keizersgracht 503 ligt in de Grachtengordel-Zuid, in een rustig gedeelte van de Spiegelbuurt. Vlak bij het Rijksmuseum, het Amstelveld en talloze voorzieningen van buurtwinkels en speciaalzaken tot culturele instellingen, toprestaurants, bruine cafés en galerieën. Deze buurt heeft naar verhouding veel jonge inwoners van tussen de 25 en 44 jaar. Zo is deze locatie makkelijk bereikbaar en is de metro halte Vijzelstraat op loopafstand.

Bijzonderheden
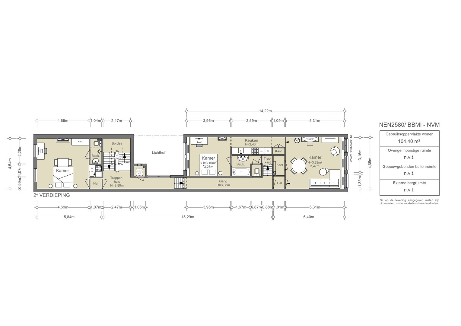
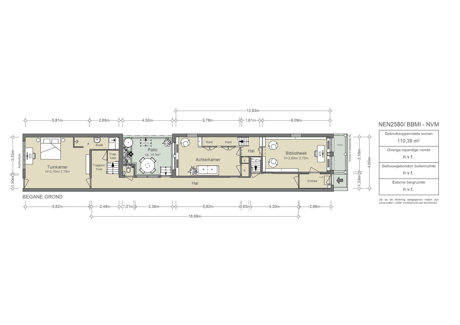
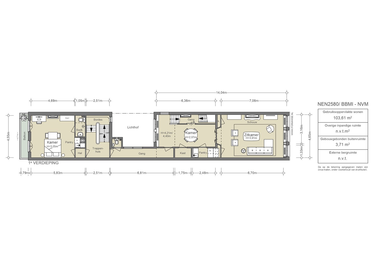
• Gebruiksoppervlakte wonen ca. 466 m²
• Diepe tuin met charmant tuinhuis
• Gelegen op eigen grond
• Funderingsherstel is vereist
• Rijksmonument gelegen in Rijks beschermd stadsgezicht en door UNESCO aangewezen beschermd wereld erfgoed
• Verkopers nemen een asbest-, ouderdoms- en niet bewoning clausule op in de koopakte
• Project notaris is Dentons te Amsterdam
• Kijk voor meer informatie op de website van het Nationaal Monumenten Portaal, Restauratiefonds en Rijksdienst voor het Cultureel Erfgoed met betrekking tot mogelijkheden.
• Funderingsrapport aanwezig
• Asbestinventarisatie aanwezig


Deze informatie is door ons met de nodige zorgvuldigheid samengesteld. Onzerzijds wordt echter geen enkele aansprakelijkheid aanvaard voor enige onvolledigheid, onjuistheid of anderszins, dan wel de gevolgen daarvan. Alle opgegeven maten en oppervlakten zijn slechts indicatief
De Meetinstructie is gebaseerd op de NEN2580. De Meetinstructie is bedoeld om een meer eenduidige manier van meten toe te passen voor het geven van een indicatie van de gebruiksoppervlakte. De Meetinstructie sluit verschillen in meetuitkomsten niet volledig uit, door bijvoorbeeld interpretatieverschillen, afrondingen of beperkingen bij het uitvoeren van de meting.

----------------------
De Koopman - A classic and listed canal house classified as a national monument, consisting of a ground floor, first floor, two upper floors, and an attic. The black façade and the ornamental consoles adorning the neck gable lend it an elegant appearance. The period rooms and the 19th-century staircase enhance its allure. This generously designed residence comprises a front house and a bright rear house, connected by a stately and comfortably navigable staircase. The property offers versatile functionality.

The complete living experience can be explored on our website or by downloading our magazine.

The Property
The total area is approximately 466 m², currently divided into four more or less independent residential units. The property is suitable for private residence, investment, or development. This charming monument is situated in a prime location and is located on freehold land. The deep and sunny backyard is complemented by a double-width garden house. The garden also features a double plot width. Plans for renovation and restoration are in place, and several subsidy schemes.

The Outdoor Space
Rear Garden: An oasis in the city center, as the gardens between the Keizersgracht and Herengracht are the widest and least built-up. Additionally, the rear overlooks the Gouden Bocht, featuring extra-large and impressive properties. Properties 503 and 505 have so far been used as a shared garden. At the back of the garden stands a garden house spanning the width of both plots. According to the current property boundaries, the plots will be separated cadastrally. The garden house will be sold with number 503, including a portion of the garden from 505. The garden will then be approximately 150 m² in size.

Neighborhood Guide
Keizersgracht 503 is located in the Grachtengordel-Zuid, in a quiet part of the Spiegelbuurt. It's close to the Rijksmuseum, Amstelveld, and numerous amenities from local shops and specialty stores to cultural institutions, top restaurants, traditional brown cafes, and galleries. This neighborhood comparatively has a lot of young residents aged between 25 and 44 years. This location is easily accessible, and the Vijzelstraat metro station is within walking distance.

Specifications
• Living area approximately 466 m²
• Deep garden with a charming garden house
• Situated on freehold land
• Foundation repair is required
• National monument located in a nationally protected cityscape and UNESCO World Heritage site
• Sellers will include an asbestos, age, and non-occupancy clause in the deed of sale
• Project notary: Dentons in Amsterdam
• For more information, visit the websites of the National Monument Portal, the Restoration Fund, and the Cultural Heritage Agency (Rijksdienst voor het Cultureel Erfgoed) regarding possibilities.
• Foundation report available
• Asbestos inventory available

This information has been compiled by us with the utmost care. However, we do not accept any liability for any incompleteness, inaccuracy, or otherwise, nor for any consequences thereof. All provided dimensions and areas are merely indicative.
The Measurement Instruction is based on NEN2580. The Measurement Instruction is intended to apply a more standardized method of measurement to provide an indication of the usable surface area. Differences in measurement results cannot be completely excluded, due to interpretation differences, rounding, or limitations in performing the measurement.
Overdracht
Type Te koop
Vraagprijs € 3.480.000 k. k.
Koopconditie k. k.
Aangeboden sinds 30 september 2025
Bouw
Soort object Woonhuis
Bouwperiode < 1906
Ligging Aan vaarwater
Inhoud
Woonoppervlakte 466 m²
Inhoud 1920 m³
Perceeloppervlakte 372 m²
Indeling
Aantal kamers 17
Aantal slaapkamers 9
Aantal badkamers 9
Contact
Bedrijfsnaam Broersma Werken en Wonen
Adres Koningslaan 14
1075 AC AMSTERDAM
Nederland
Telefoon 020 305 97 77
Contactpersoon
Naam Broersma Werken en Wonen
Telefoon 020 305 97 77
E-mailadres wonen@broersma.nl
Woningen in de buurt
Back to top