Overslaan en ga direct naar de inhoud
TERUG NAAR OVERZICHT
Rijksstraatweg 208
Loenersloot
€ 1.550.000 k. k.
Beschikbaar
Soort woning
Woonhuis
Oppervlakte
245 m² (1082 m²)
Aantal kamers
5 (3 slaapkamers)
Zoekcode
34413
Rijksstraatweg 208
Loenersloot

Aan het schilderachtige riviertje de Angstel en pal tegenover het historische Slot Loenersloot staat deze karakteristieke VRIJSTAANDE VILLA met een VRIJSTAAND MULTIFUNCIONEEL BIJGEBOUW (81m²) in optima forma! Het geheel is volledig gerenoveerd en vormt een perfecte combinatie van stijl, comfort en locatie met een verrassend ruim perceel, optimale privacy en tal van mogelijkheden.

Het dorp Loenersloot ligt zeer centraal: Amsterdam, Utrecht en ’t Gooi bereikt u binnen 15 minuten per auto. De halte van buslijn 120 richting beide steden ligt op loopafstand. Fietsliefhebbers vinden hun weg langs de pittoreske Vecht naar Abcoude, Vreeland en Loenen aan de Vecht. Scholen, winkels en horeca bevinden zich in de directe omgeving.

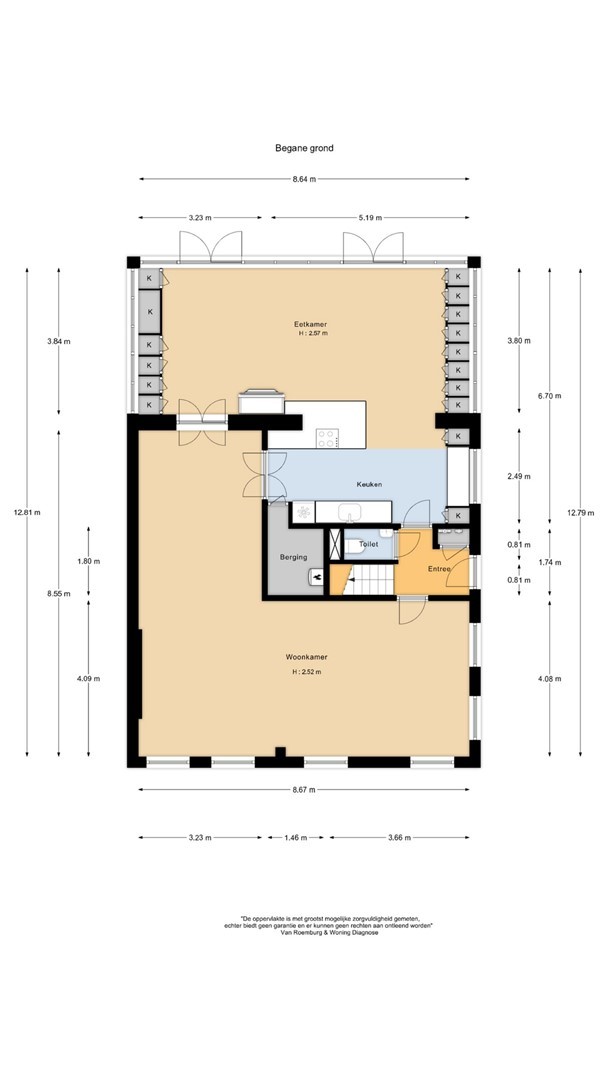
HOOFDHUIS

Indeling begane grond

Via de entree met garderobe en modern gastentoilet komt u in de living met eiken visgraatvloer, zwarte houten plinten en een karaktervolle gashaard. De ruimte is royaal en licht, met grote ramen aan de voorzijde die vrij uitzicht bieden over het water en de weilanden.

Aan de tuinzijde van het huis, in de verrassend ruime en fraaie aanbouw, bevindt zich de royale designkeuken in zwart en RVS, voorzien van kookeiland, apparatuur wand, dubbele koelkast en RVS werkblad. De afwerking is hoogwaardig en industrieel, met onder meer een betegelde wand in glanzend zwart metselwerk.

Dubbele stalen deuren verbinden de keuken met de eetkamer, die zich uitstrekt over de volledige breedte van het huis. Dankzij de vele ramen rondom en openslaande deuren naar het terras is dit een prachtige, lichte leefruimte die het buitengevoel naar binnen brengt. Aangrenzend bevindt zich een berging.

Verdieping

Op de eerste verdieping bevinden zich twee slaapkamers, waaronder een royale slaapkamer met vaste kastenwand en een indrukwekkend plafond tot in de nok. De luxe badkamer is strak vormgegeven met een vrijstaand ligbad, inloopdouche, wastafelmeubel en tweede toilet. Dankzij de strategisch geplaatste dakramen valt het licht speels naar binnen.

Vliering

Middels een vlizotrap is de zolder bereikbaar. Deze praktische bergruimte heeft een hoogte van 1,83 meter.

GEBRUIKSOPPERVLAKTEN

De vermelde gebruiksoppervlakte wonen bedraagt totaal 245m², dit bestaat uit 164m² voor het hoofdgebouw en 81m² voor het bijgebouw.

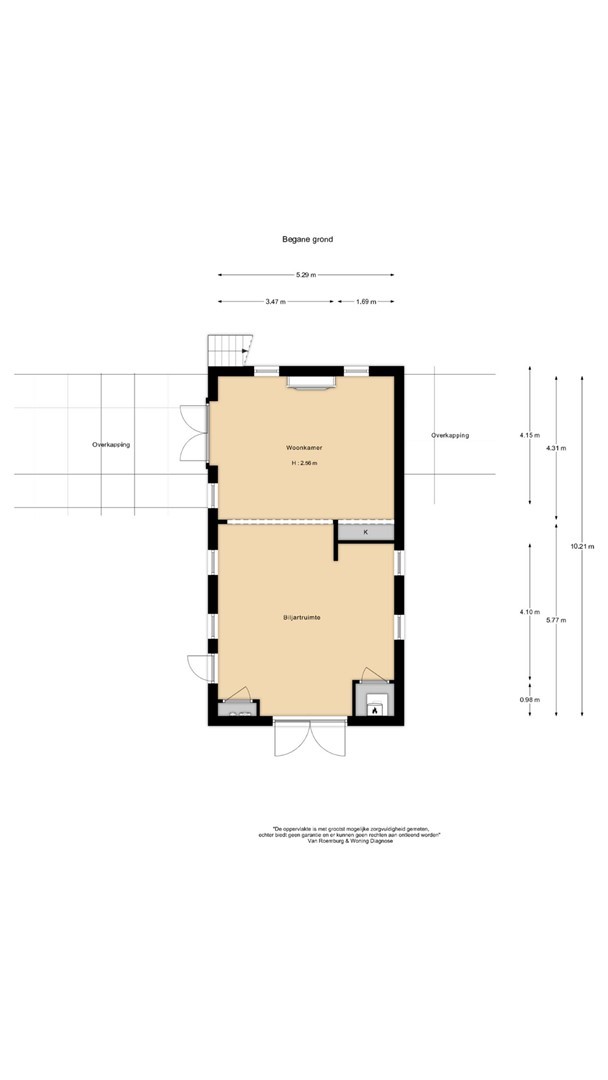
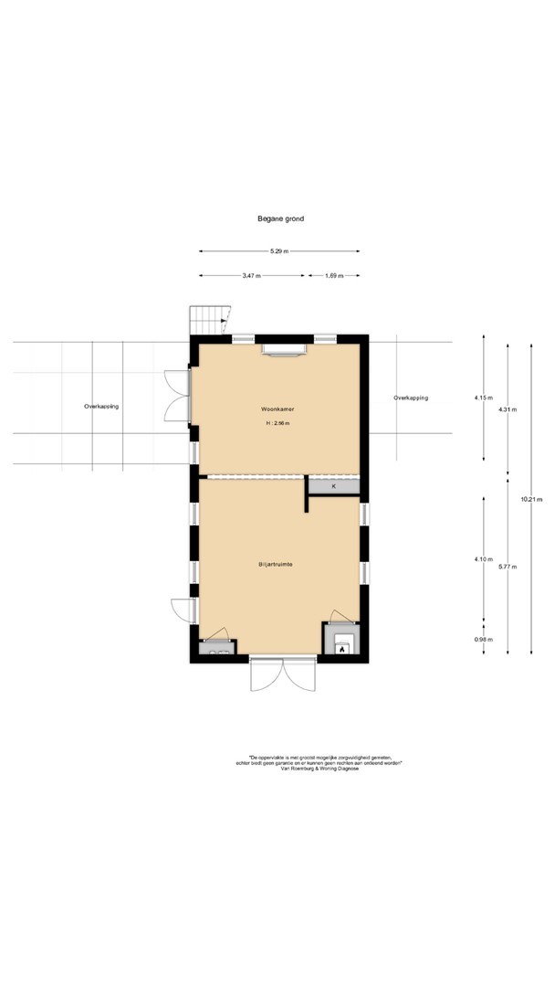
HET BIJGEBOUW

Achter op het perceel staat een vrijstaand, volledig geïsoleerd bijgebouw met twee woonlagen. Een multifunctionele ruimte met eigen entree, badkamer, keuken en toilet – uitermate geschikt als gastenverblijf, praktijkruimte of mantelzorgunit.

Indeling bijgebouw

Begane grond
Woonkamer, pantry, toilet, dubbele openslaande deuren naar de tuin.

Verdieping
woon-en werkkamer met keukenblok, slaapkamer, badkamer met douche en toilet. Ook hier is de afwerking stijlvol en eigentijds, met een eigen sfeer en optimaal gebruik van ruimte.

TUIN & BUITENLEVEN

De tuin rondom het huis is met zorg aangelegd en biedt privacy, groen en volop zon. Er is een beschut terras bij de eetkamer, een buitenkeuken onder de overkapping en een lange oprit met ruimte voor meerdere auto’s.

De twee vaste overkappingen (samen circa 36 m²) bieden ruimte voor sfeervolle loungehoek, buitenkeuken of extra berging. De ligging aan de zijkant van het perceel maakt de tuin goed bereikbaar en functioneel.

BIJZONDERHEDEN

Woonoppervlak hoofdgebouw: 164 m²
Woonoppervlak bijgebouw: 81 m²
Perceeloppervlak: 1.082 m²
Stijlvol en hoogwaardig gerenoveerd
Designkeuken met RVS werkblad en stalen deuren
Twee badkamers en drie toiletten
Gashaard en vloerverwarming op de begane grond
Gelegen bij het water met vrij uitzicht
Goede bereikbaarheid (snelweg, uitvalswegen en OV)
Bijgebouw met eigen voorzieningen en veel gebruiksmogelijkheden
Overdracht
Type Te koop
Vraagprijs € 1.550.000 k. k.
Koopconditie Beschikbaar
Aangeboden sinds 9 december 2025
Bouw
Soort object Woonhuis
Bouwperiode < 1906
Woning type Vrijstaande woning
Ligging Aan vaarwater
Inhoud
Woonoppervlakte 245 m²
Inhoud 563 m³
Perceeloppervlakte 1082 m²
Indeling
Aantal kamers 5
Aantal slaapkamers 3
Aantal badkamers 2
Contact
Bedrijfsnaam Drieklomp Makelaars en Rentmeesters
Adres Torenlaan 13
1251 HE Laren
Nederland
Telefoon 035-3035625
Contactpersoon
Naam Bastiaan Schuijt
Telefoon 035-3035625
E-mailadres laren@drieklomp.nl
Woningen in de buurt
Back to top