Overslaan en ga direct naar de inhoud
TERUG NAAR OVERZICHT
Van Eeghenlaan 28
Amsterdam
€ 4.700.000 k. k.
Beschikbaar
Soort woning
Woonhuis
Oppervlakte
355 m² (122 m²)
Aantal kamers
10 (5 slaapkamers)
Zoekcode
78474
Van Eeghenlaan 28
Amsterdam

PARK VAN EEGHEN | Wonen in grandeur met uitzicht op het Vondelpark, in een prachtig en statig herenhuis uit 1894 dat volledig gemoderniseerd is met behoud van zijn oorspronkelijke sfeer, biedt een unieke woonervaring. Het huis beslaat in totaal 355 m² woonoppervlakte verdeeld over vijf ruime etages, die op een praktische en evenwichtige manier zijn ingedeeld. Het pand is multifunctioneel te gebruiken met meerdere vertrekken die zowel groot als goed verdeeld zijn. Bovendien beschikt de woning over meerdere buitenruimten op het zuiden, waaronder een dakterras. Vanaf hier is niet alleen het Vondelpark optimaal te ervaren, maar biedt het ook een panoramisch uitzicht over Amsterdam Zuid. De Van Eeghenlaan, met name dit deel ervan, bevindt zich direct aan het Vondelpark en geniet daardoor van een rustige ligging, terwijl alle voorzieningen binnen handbereik zijn. Deze centrale locatie maakt het een ideale plek om te wonen, waar rust en groen gecombineerd worden met de nabijheid van alle gemakken van de stad.

Rondleiding
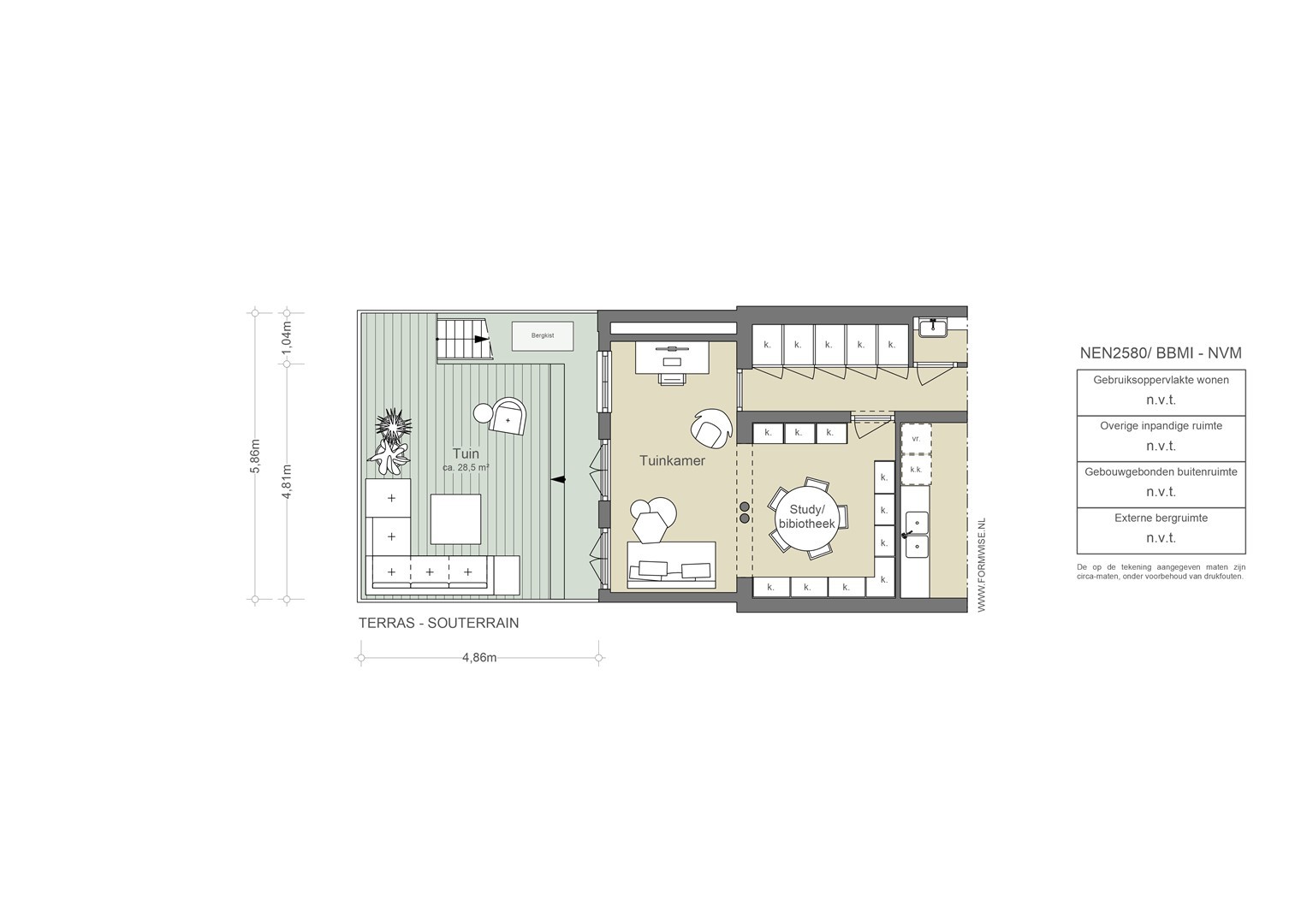
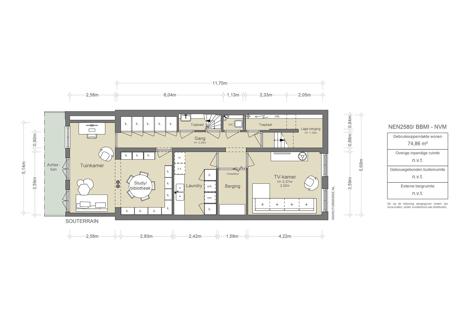
Het entree van dit statige herenhuis straalt grandeur uit, met een hoge hal voorzien van marmer en ornamenten die toegang biedt tot zowel de bel-etage als het souterrain. Het souterrain is een volwaardige verdieping met een ruime hoogte en voldoende daglicht. Aan de voorzijde bevindt zich een gastenkamer, in het midden een grote inpandige berging die ook geschikt is voor een extra badkamer, en een ruime laundry. Een lange gang met meerdere kasten leidt naar een toilet, de berging, de laundry en een extra ruimte die momenteel als werkruimte in gebruik is en grenst aan de op het zuiden gelegen binnentuin.
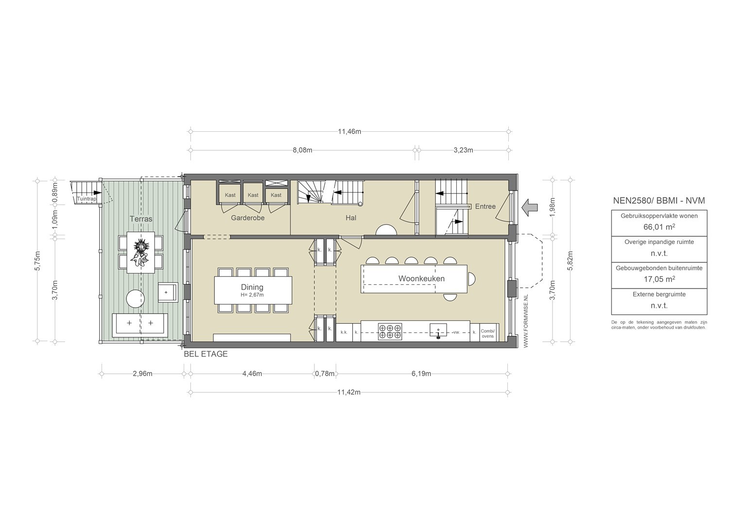
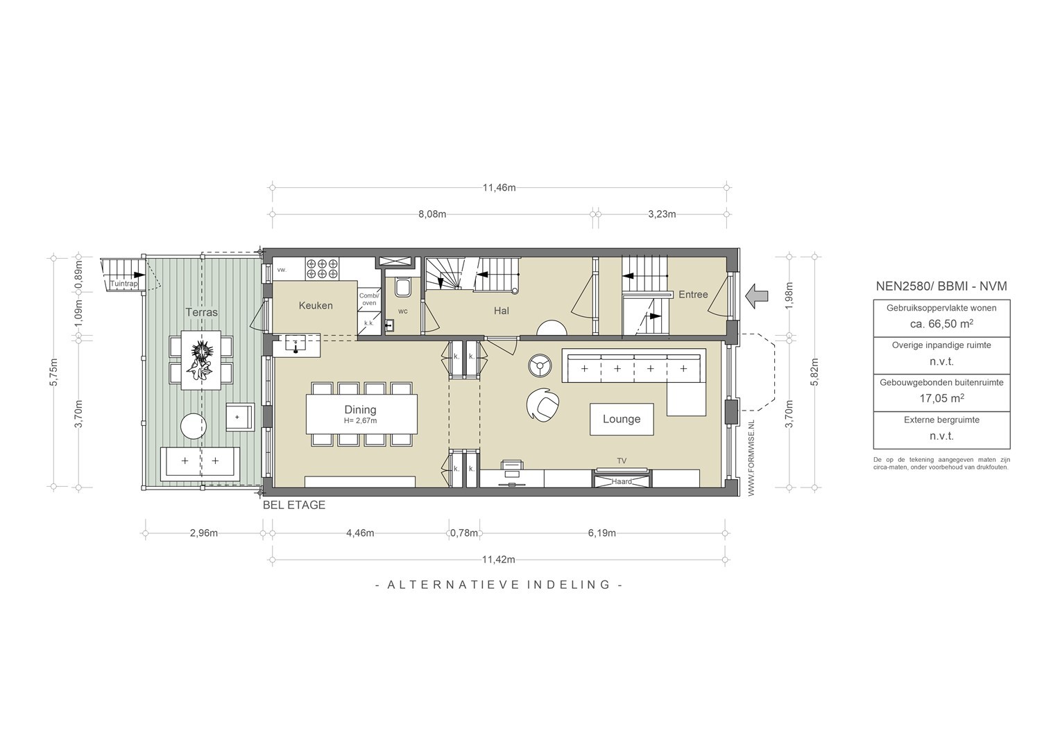
De bel-etage is een lichte verdieping waar de woonkeuken en een grote eetkamer vrijwel de hele verdieping beslaan. De moderne keuken is compleet uitgerust en voorzien van een kookeiland waar gasten graag aanschuiven. De eetkamer grenst aan een terras op het zuiden aan de achterzijde. De hal biedt toegang tot een fraaie trap die naar de eerste verdieping leidt, een garderobe en een gastentoilet.
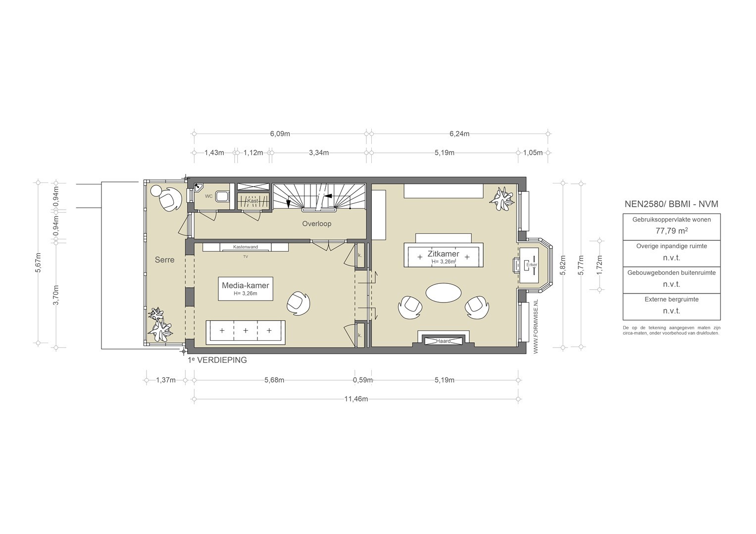
Op de eerste verdieping is een prachtige salon aan de voorzijde met drie ramen breed en een erker die uitkijken over het Vondelpark. Deze kamer heeft een mooie eikenhouten vloer in een Hongaarse punt en een klassieke schouw met een gashaard. Aan de achterzijde bevindt zich een media kamer, die extra allure heeft gekregen door een fraaie erker die in 2010 is toegevoegd en die de verdieping extra cachet en licht geeft.
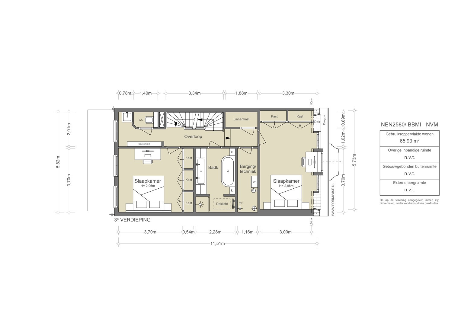
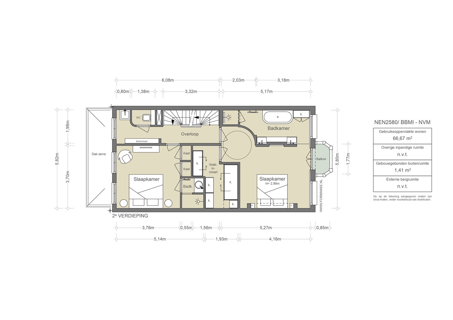
De twee bovenste verdiepingen omvatten vier ruime slaapkamers, twee badkamers, een kleedruimte en een technische ruimte. Alle kamers zijn voorzien van ingebouwde kasten en genieten van veel natuurlijk licht.

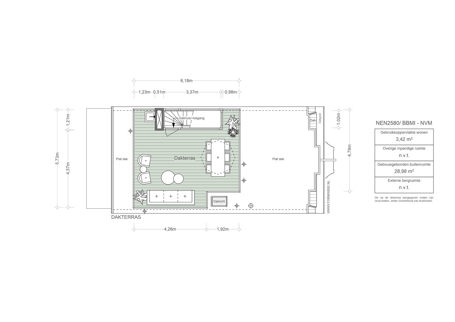
Het huis biedt op vrijwel elke verdieping een buitenruimte en het dakterras is een bijzondere ervaring met vrij zicht op het park en verder richting het zuiden. Het pand straalt een geheel eigen sfeer uit en maakt het daarmee uniek. Gelegen op eigen grond en met een woonoppervlakte van 355 m² biedt het huis een ultieme woonervaring aan het Vondelpark, waar bewoners kunnen genieten van groen en rust in combinatie met de dynamiek van de stad.

Wat de bewoonster gaan missen 
"'s Nachts met open balkondeuren aan de voorkant luisteren naar het ruisen van de bomen in het Vondelpark."

Buurtgids
Deze woning is prachtig gelegen in het Museumkwartier, vlakbij de ingang van het Vondelpark, en in de nabijheid van de Cornelis Schuytstraat en de PC Hooftstraat. Deze locatie behoort tot de meest gewilde in Amsterdam. De buurt biedt een divers aanbod aan restaurants, cafés en winkels die perfect passen bij de internationale allure van de wijk. Mode-liefhebbers kunnen hun hart ophalen in de P.C. Hooftstraat, waar modehuizen zoals Burberry, Ba&sh en Isabel Marant Étoile gevestigd zijn. Wat deze buurt extra aantrekkelijk maakt, is de nabijheid tot het Centrum, De Pijp en Amsterdam Zuid, elk op loopafstand bereikbaar. Bewoners kunnen dus genieten van de rust en groen van het Vondelpark, terwijl alle dynamiek en voorzieningen van de stad binnen handbereik liggen.

Bijzonderheden
•    Gebruiksoppervlakte wonen circa 355 m²
•    Balkon/dakterras/tuin gelegen allen op het zuiden, totaal circa 65 m²
•    Gelegen op eigen grond
•    Interieurarchitect; Vlaardingerbroek&Wevers
•    Informatie fundering; hoofdgebouw staat op de originele fundering, uitbouw is in 1998 nieuw gefundeerd.
•    Renovatiejaar 2010
•    Geen monument
•    Gemeentelijk beschermd stadsgezicht

Deze informatie is door ons met de nodige zorgvuldigheid samengesteld. Onzerzijds wordt echter geen enkele aansprakelijkheid aanvaard voor enige onvolledigheid, onjuistheid of anderszins, dan wel de gevolgen daarvan. Alle opgegeven maten en oppervlakten zijn slechts indicatief
De Meetinstructie is gebaseerd op de NEN2580. De Meetinstructie is bedoeld om een meer eenduidige manier van meten toe te passen voor het geven van een indicatie van de gebruiksoppervlakte. De Meetinstructie sluit verschillen in meetuitkomsten niet volledig uit, door bijvoorbeeld interpretatieverschillen, afrondingen of beperkingen bij het uitvoeren van de meting.

----------------------

PARK VAN EEGHEN | Living in grandeur with a view of Vondelpark, in a beautiful and stately townhouse from 1894 that has been fully modernized while preserving its original atmosphere, offers a unique living experience. The house spans a total of 355 m² of living space spread over five spacious floors, thoughtfully and practically designed. The property is multifunctional with multiple rooms that are both large and well-distributed. Additionally, the residence features several south-facing outdoor spaces, including a rooftop terrace. From here, you can not only fully experience Vondelpark but also enjoy panoramic views over Amsterdam Zuid. Situated directly adjacent to Vondelpark, particularly this part of Van Eeghenlaan enjoys a peaceful location while all amenities are within easy reach. This central location makes it an ideal place to live, combining tranquility and greenery with proximity to all city conveniences.

Tour
The entrance of this stately townhouse exudes grandeur, with a high hall adorned with marble and ornaments, providing access to both the main floor and the basement. The basement is a full floor with ample height and natural light. At the front is a guest room, in the middle a large indoor storage room suitable for an additional bathroom, and a spacious laundry room. A long corridor with multiple closets leads to a toilet, additional storage, the laundry room, and an extra room currently used as a workspace, adjoining the south-facing courtyard.
The main floor is bright, featuring a kitchen-dining area that occupies almost the entire floor. The modern kitchen is fully equipped with a kitchen island where guests can gather. The dining room opens onto a south-facing terrace at the rear. The hall provides access to a beautiful staircase leading to the first floor, a wardrobe, and a guest toilet.
On the first floor, a stunning salon at the front boasts three windows wide and a bay window overlooking Vondelpark. This room features a beautiful oak herringbone floor and a classic fireplace with a gas insert. At the rear is a media room, enhanced by a beautiful bay window added in 2010, adding charm and light to the floor.
The two upper floors comprise four spacious bedrooms, two bathrooms, a dressing room, and a utility room. All rooms feature built-in closets and enjoy plenty of natural light.
The house offers outdoor spaces on nearly every floor, with the rooftop terrace providing a special experience with unobstructed views of the park and beyond to the south. The property exudes its own unique atmosphere, making it truly distinctive. Located on freehold land and offering a living space of 355 m², the house provides the ultimate living experience by Vondelpark, where residents can enjoy greenery and tranquility combined with the dynamics of the city.

What the resident will miss
"At night, listening to the rustling of the trees in Vondelpark with the balcony doors open at the front."

Neighborhood
This property is beautifully situated in the Museumkwartier, near the entrance of Vondelpark, and close to Cornelis Schuytstraat and PC Hooftstraat. This location is among the most sought-after in Amsterdam. The neighborhood offers a diverse range of restaurants, cafes, and shops that perfectly complement the international allure of the area. Fashion enthusiasts will find delight in P.C. Hooftstraat, home to fashion houses like Burberry, Ba&sh, and Isabel Marant Étoile. What makes this neighborhood even more attractive is its proximity to Centrum, De Pijp, and Amsterdam Zuid, each within walking distance. Residents can enjoy the peace and greenery of Vondelpark while having all the excitement and amenities of the city close at hand.

Key features
•    Approx. 355 m² of living space
•    Balcony/rooftop terrace/garden, all facing south, totaling approx. 65 m²
•    Freehold property
•    Interior architect: Vlaardingerbroek&Wevers
•    Foundation information: main building on original foundation, extension newly founded in 1998
•    Renovation year: 2010
•    Not listed as a monument
•    Municipal protected cityscape

This information has been compiled with care. However, no liability is accepted for any incompleteness, inaccuracy, or otherwise, nor for the consequences thereof. All sizes and surfaces provided are indicative only. The Measurement Instruction is based on the NEN2580 standard, intended to provide a more uniform way of measuring to give an indication of the usable area. Differences in measurement outcomes cannot be completely ruled out due to interpretation differences, rounding, or limitations during measurement execution.
Overdracht
Type Te koop
Vraagprijs € 4.700.000 k. k.
Koopconditie Beschikbaar
Aangeboden sinds 13 oktober 2025
Bouw
Soort object Woonhuis
Inhoud
Woonoppervlakte 355 m²
Inhoud 1100 m³
Perceeloppervlakte 122 m²
Indeling
Aantal kamers 10
Aantal slaapkamers 5
Aantal badkamers 3
Buitenruimte
Tuin 29 m²
Garage 0 m², 1 auto's
Contact
Bedrijfsnaam Broersma Werken en Wonen
Adres Koningslaan 14
1075 AC AMSTERDAM
Nederland
Telefoon 020 305 97 77
Contactpersoon
Naam Broersma Werken en Wonen
Telefoon 020 305 97 77
E-mailadres wonen@broersma.nl
Woningen in de buurt
Back to top