Overslaan en ga direct naar de inhoud
TERUG NAAR OVERZICHT
Albert Hahnplantsoen 21
Amsterdam
€ 9.980.000 k. k.
Beschikbaar
Soort woning
Woonhuis
Oppervlakte
400 m² (455 m²)
Aantal kamers
6 (5 slaapkamers)
Zoekcode
94494
Albert Hahnplantsoen 21
Amsterdam

Villa Hahn | Impossante half vrijstaande villa van circa 400 m² met zij- en achtertuin, gelegen op één van de meest gewilde locaties in de Apollobuurt. Deze bijzonder ruim opgezette villa beschikt over een riante woonkamer, open luxe keuken, vijf ruime slaapkamers, twee badkamers, een ruime tuin gelegen op het zuiden van circa 203 m² en twee garages. De villa is een fijn en luxe familiehuis. Er is recent een vergunning verleend om het pand te vergroten tot meer dan 500 m². Gelegen op eeuwigdurend afgekochte erfpachtgrond.

De volledige woonbeleving is te ervaren op onze website of download ons magazine. Via onze website kun je ook eenvoudig zelf je bezichtiging inplannen. *See English translation below *

Rondleiding
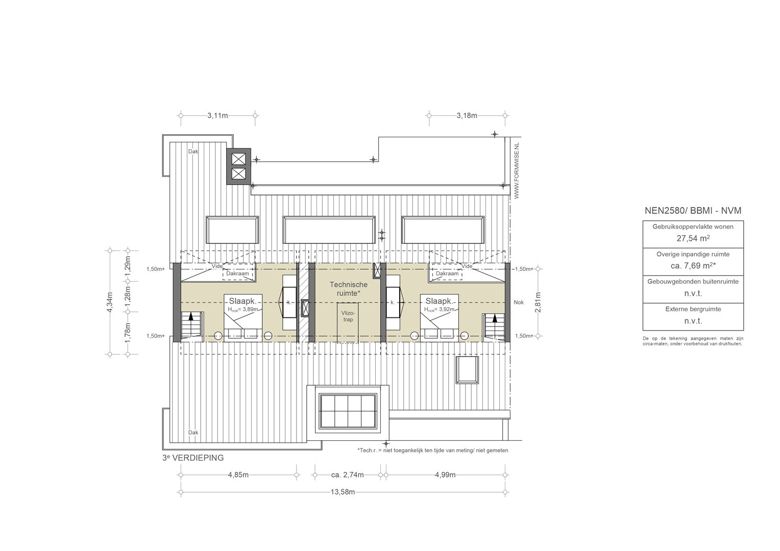
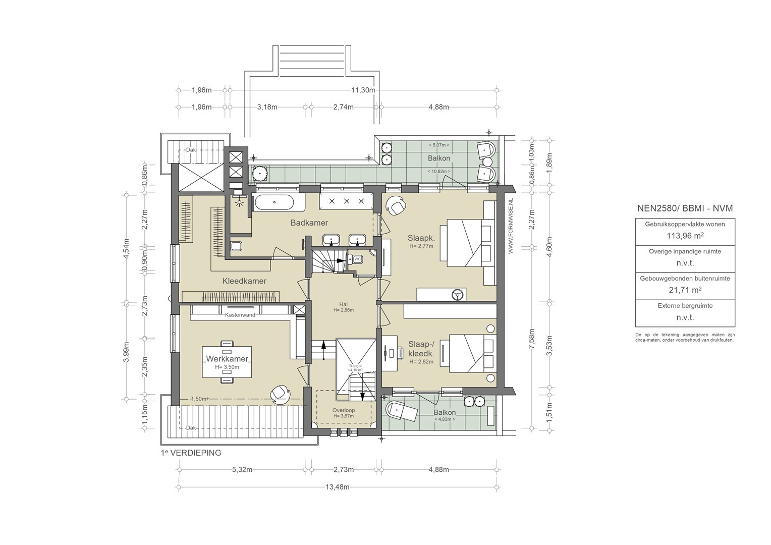
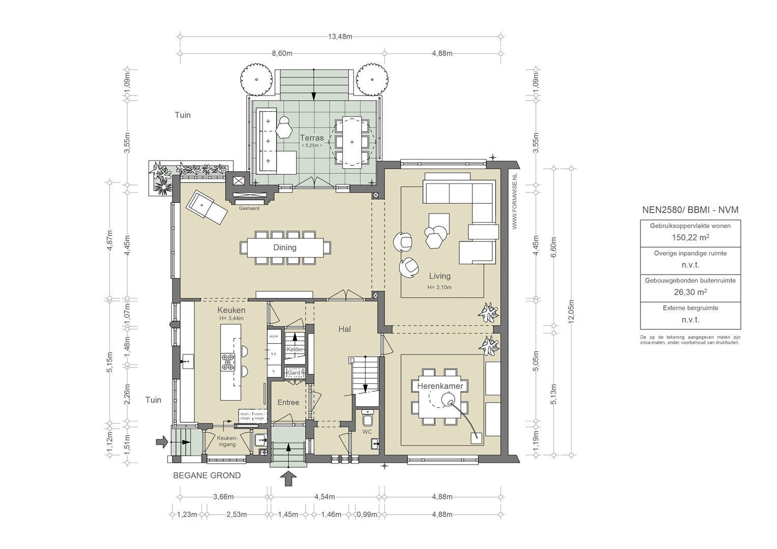
De entree van de villa weerspiegelt de iconische stijl van de Amsterdamse School, met een uitnodigend voorportaal en een centrale hal die wordt verlicht door een indrukwekkend verticaal glas-in-loodraam. Dit raam, destijds ontworpen door architect E. Nijstra in opdracht van de heer J.J. Eyrond, vormt een kunstzinnig middelpunt van het interieur. De begane grond biedt een elegante, royaal opgezette living met grote raampartijen en een sfeervolle eetkamer met gashaard en directe toegang tot de fraai aangelegde tuin. De moderne keuken, voorzien van een centraal kookeiland en hoogwaardige apparatuur, sluit naadloos aan op de eetkamer en biedt uitzicht op het groen. Praktische voorzieningen, zoals een bijkeuken met toegang tot de zijtuin, vervolmaken deze woonlaag. De bovenverdiepingen combineren comfort met flexibiliteit. Een statige trap leidt naar de eerste verdieping, waar zich een ruime tv- of werkkamer bevindt en twee slaapkamers, waaronder een serene hoofdsuite met balkon, luxe inloopkast en verfijnde badkamer. De tweede verdieping biedt extra woonruimte met twee zelfstandige studio’s, elk geschikt als werkruimte, gastenverblijf of privéverblijf, en een gedeelde badkamer.
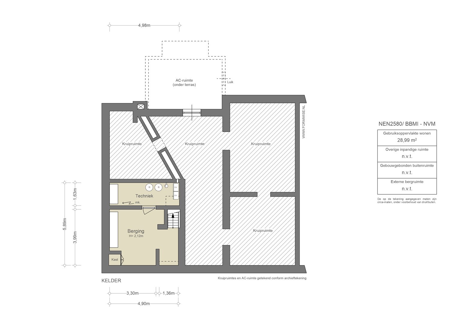
De villa onderscheidt zich door de hoogwaardige afwerking, de doordachte indeling en de ingetogen luxe die in elk detail voelbaar is. Voor wie behoefte heeft aan extra woonoppervlak, is er een onherroepelijke vergunning verleend voor de uitbreiding van de kelderverdieping. Deze ruimte biedt de mogelijkheid om een gym, home cinema of gastenverblijf te realiseren, waarmee de totale gebruiksoppervlakte wordt vergroot tot meer dan 500 m²

Wat de bewoners gaan missen
"Dit huis heeft ons zoveel gegeven, en we hopen dat het voor de nieuwe bewoners net zo’n warme en geliefde plek zal worden."

Buurtgids
Het Albert Hahnplantsoen behoort tot de meest exclusieve en prestigieuze straten van Amsterdam-Zuid. Gelegen op de grens van de Apollobuurt en Oud-Zuid, beide bekend om hun karakteristieke architectuur, groene lanen en verfijnde levensstijl, vormt dit plantsoen een van de meest gewilde woonlocaties van de stad. De villa ligt te midden van een weelderige omgeving, omringd door statige herenhuizen en volwassen groen. De buurt combineert rust en privacy met de nabijheid van de levendige stad. Ondanks het residentiële karakter zijn het stadscentrum en andere geliefde wijken eenvoudig bereikbaar. Op loopafstand bevinden zich bovendien de Cornelis Schuytstraat en de Beethovenstraat, met hun brede aanbod aan exclusieve winkels, boetieks, restaurants en cafés.

Bij de presentatie van deze woning op onze website, hebben we de leukste hotspots in de buurt verzameld.

Bijzonderheden
• Gebruiksoppervlakte wonen circa 400 m²
• Vergunning tot vergroten gebruiksoppervlakte wonen tot meer dan 500 m²
• Tuin gelegen op het zuiden van circa 202 m²
• Gelegen op erfpachtgrond van Gemeente Amsterdam. De erfpachtcanon voor het woonhuis met garage is eeuwigdurend afgekocht
• Twee garages
• De erfpachtcanon voor de garage op perceel 2142 is afgekocht tot en met 31 augustus 2100
• De erfpachtcanon voor de garage op perceel 2141 is eeuwigdurend afgekocht
• Interieurarchitect Dik Smeding
• Gerenoveerd in 2003
• Rijksmonument
• Rijksbeschermd stadsgezicht Plan Zuid

Kijk voor meer informatie op de website van het Nationaal Monumenten Portaal, Restauratiefonds en Rijksdienst voor het Cultureel Erfgoed met betrekking tot mogelijke subsidies.

Deze informatie is door ons met de nodige zorgvuldigheid samengesteld. Onzerzijds wordt echter geen enkele aansprakelijkheid aanvaard voor enige onvolledigheid, onjuistheid of anderszins, dan wel de gevolgen daarvan. Alle opgegeven maten en oppervlakten zijn slechts indicatief
De Meetinstructie is gebaseerd op de NEN2580. De Meetinstructie is bedoeld om een meer eenduidige manier van meten toe te passen voor het geven van een indicatie van de gebruiksoppervlakte. De Meetinstructie sluit verschillen in meetuitkomsten niet volledig uit, door bijvoorbeeld interpretatieverschillen, afrondingen of beperkingen bij het uitvoeren van de meting.

--------------

Villa Hahn | An imposing semi detached residence of approximately 400 square metres with side and rear garden, situated on one of the most sought after locations in the Apollobuurt.
This generously proportioned villa offers a grand living room, an open luxury kitchen, five spacious bedrooms, two bathrooms, a south facing garden of approximately 203 square metres and two garages. It is a refined and comfortable family home. A permit has recently been granted to extend the property to more than 500 square metres. The ground lease has been bought out in perpetuity.

The full living experience can be discovered on our website or by downloading our digital magazine. You can also easily schedule your own viewing through our website.

Tour
The entrance reflects the iconic Amsterdam School style, with an inviting vestibule and a central hall illuminated by an impressive vertical stained glass window. Designed at the time by architect E. Nijstra for J. J. Eyrond, it forms a striking artistic centrepiece within the interior.
The ground floor features an elegant and generously scaled living area with large windows and a welcoming dining room with gas fireplace and direct access to the landscaped garden. The modern kitchen, equipped with a central island and high quality appliances, connects seamlessly with the dining room and overlooks the greenery. Practical additions, such as a utility room with access to the side garden, complete this level.
The upper floors combine comfort and flexibility. A stately staircase leads to the first floor, where a spacious study or television room is located, along with two bedrooms including a serene primary suite with balcony, walk in dressing room and refined bathroom.
The second floor provides additional living space with two self contained studios, each suitable as a work space, guest area or private retreat, and a shared bathroom.
The villa distinguishes itself through its high quality finishes, thoughtful layout and the understated luxury evident in every detail. For those requiring further living space, a definitive permit has been granted to extend the basement level. This offers the opportunity to create a gym, home cinema or guest suite, increasing the total usable floor area to more than 500 square metres.

What the current owners will miss
“This house has given us so much, and our hope is that it becomes just as warm and beloved a home for the next residents.”

Neighbourhood
Albert Hahnplantsoen is one of the most exclusive and prestigious streets in Amsterdam Zuid. Positioned between the Apollobuurt and Oud Zuid, both known for their characteristic architecture, tree lined avenues and refined lifestyle, this leafy square represents one of the city’s most desirable residential locations. The villa is surrounded by elegant townhouses and mature greenery, offering tranquillity and privacy while remaining close to the vibrancy of the city.
Despite its residential character, the city centre and other popular districts are easily reached. The Cornelis Schuytstraat and the Beethovenstraat are within walking distance and offer an extensive selection of boutiques, specialty shops, restaurants and cafés.

Key details
• Living area approximately 400 square metres
• Permit granted for expansion to more than 500 square metres
• South facing garden of approximately 202 square metres
• Situated on municipal leasehold land with ground rent bought out in perpetuity for the residence and garage
• Two garages
• Ground rent for the garage on parcel 2142 bought out until 31 August 2100
• Ground rent for the garage on parcel 2141 bought out in perpetuity
• Interior design by Dik Smeding
• Renovated in 2003
• Listed national monument
• Located within the protected cityscape of Plan Zuid

Further information on potential subsidies can be found on the websites of the National Monuments Portal, the Restoration Fund and the Cultural Heritage Agency of the Netherlands.

This information has been compiled with the utmost care. However, no liability is accepted for any inaccuracies or omissions, nor for the consequences thereof. All measurements and surface areas are indicative only. The measurement guidelines are based on NEN2580, intended to provide a uniform standard for determining usable living space, though minor discrepancies may occur due to interpretation or measurement limitations.
Overdracht
Type Te koop
Vraagprijs € 9.980.000 k. k.
Koopconditie Beschikbaar
Aangeboden sinds 26 november 2025
Bouw
Soort object Woonhuis
Bouwperiode 1931 - 1944
Woning type 2-onder-1-kapwoning
Inhoud
Woonoppervlakte 400 m²
Inhoud 1800 m³
Perceeloppervlakte 455 m²
Indeling
Aantal kamers 6
Aantal slaapkamers 5
Aantal badkamers 2
Buitenruimte
Tuin 202 m²
Garage 0 m², 2 auto's
Contact
Bedrijfsnaam Broersma Werken en Wonen
Adres Koningslaan 14
1075 AC AMSTERDAM
Nederland
Telefoon 020 305 97 77
Contactpersoon
Naam Broersma Werken en Wonen
Telefoon 020 305 97 77
E-mailadres wonen@broersma.nl
Woningen in de buurt
Back to top