Overslaan en ga direct naar de inhoud
TERUG NAAR OVERZICHT
Oranje Nassaulaan 53 3
Amsterdam
€ 2.980.000 k. k.
k. k.
Soort woning
Appartement
Oppervlakte
159 m² (0 m²)
Aantal kamers
3 (2 slaapkamers)
Zoekcode
50019
Oranje Nassaulaan 53 3
Amsterdam

Wonen in Volmaaktheid | Een uniek penthouse in Amsterdam Zuid van 159 m² wonen op één verdieping met dakterras. Het appartement is drempelloos met de lift bereikbaar vanaf straatniveau. Volledig herontwikkeld met een doordachte visie op comfort, esthetiek en afwerking. De recente renovatie omvat maatwerkoplossingen, hoogwaardige installaties en een ingetogen palet van natuurlijke materialen. Moderne uitstraling en tijdloze architectuur gaan hier samen met details als eiken visgraatvloeren, verfijnde verlichting en zorgvuldig ontworpen leef keuken, 2 slaapkamers en 2 badkamers. Met een liftverbinding, zonnig dakterras en ligging nabij het Vondelpark vormt dit penthouse een uitgebalanceerde eenheid, waarin alles in harmonie samenkomt.

De volledige woonbeleving is te ervaren op onze website of download ons magazine. Hier kun je ook eenvoudig zelf je bezichtiging inplannen. *See English translation below *

Rondleiding
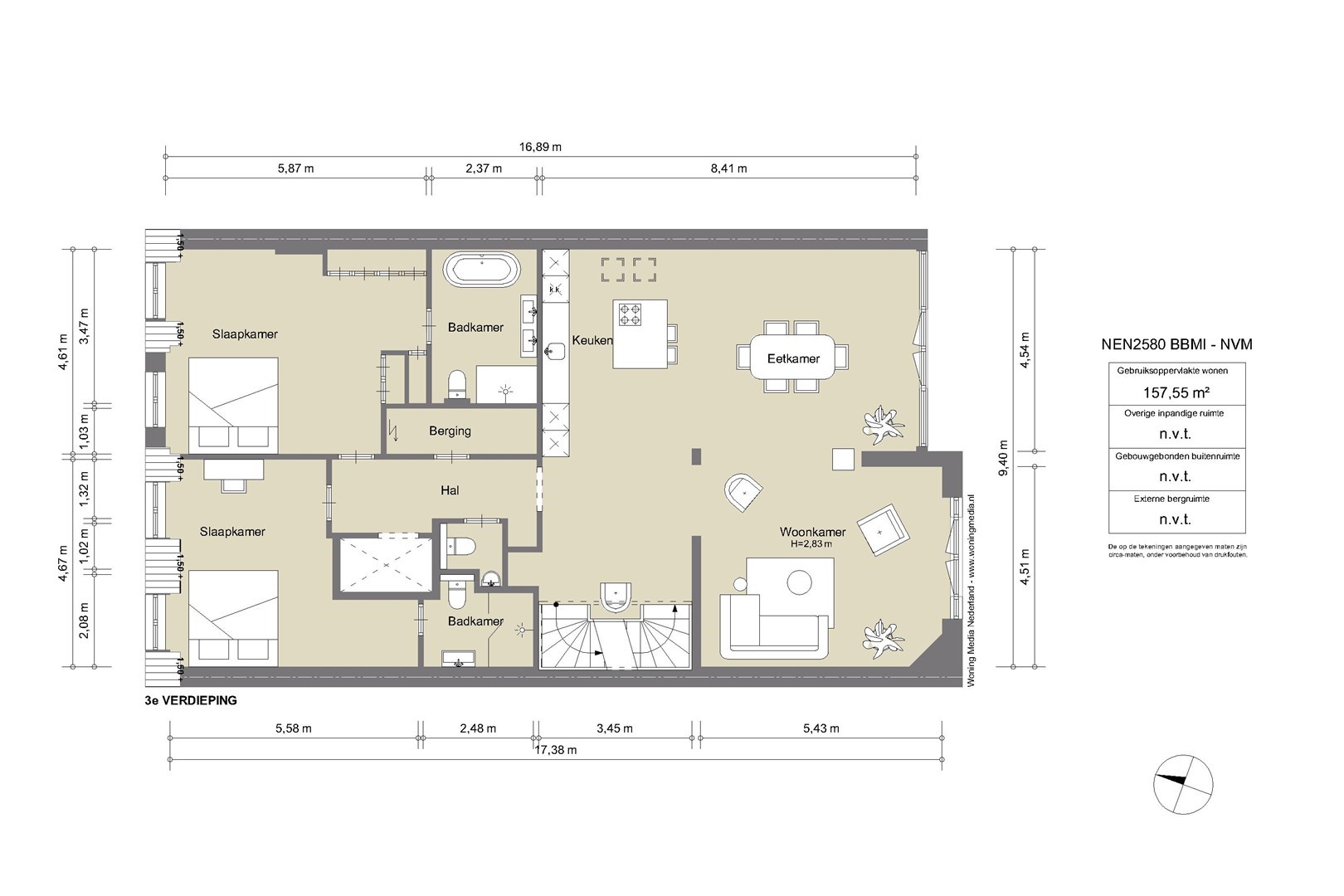
We beginnen beneden, aan de Oranje Nassaulaan. Een statige bordestrap leidt naar de gemeenschappelijke entree, waar het licht door glas-in-lood valt. Daarnaast is er een tweede entree op grond niveau waarbij je direct in de lift stapt die rechtstreeks in het appartement uitkomt, een zeldzaam kenmerk voor dit type gebouw. Eenmaal binnen valt direct op hoe rustig en helder de ruimte is. Eiken visgraatvloeren vangen het daglicht dat vanaf de voor- en achterzijde binnenvalt. De woonkamer ligt aan de tuinzijde en heeft een open verbinding met de keuken. Die is uitgevoerd in warm houtfineer, met een vrijstaand eiland in licht natuursteen. Alles is op maat gemaakt, van de kastenwand tot de nissen met indirect licht. Hier kun je koken, praten, zitten, lezen, zonder dat de ruimte zich opdringt.
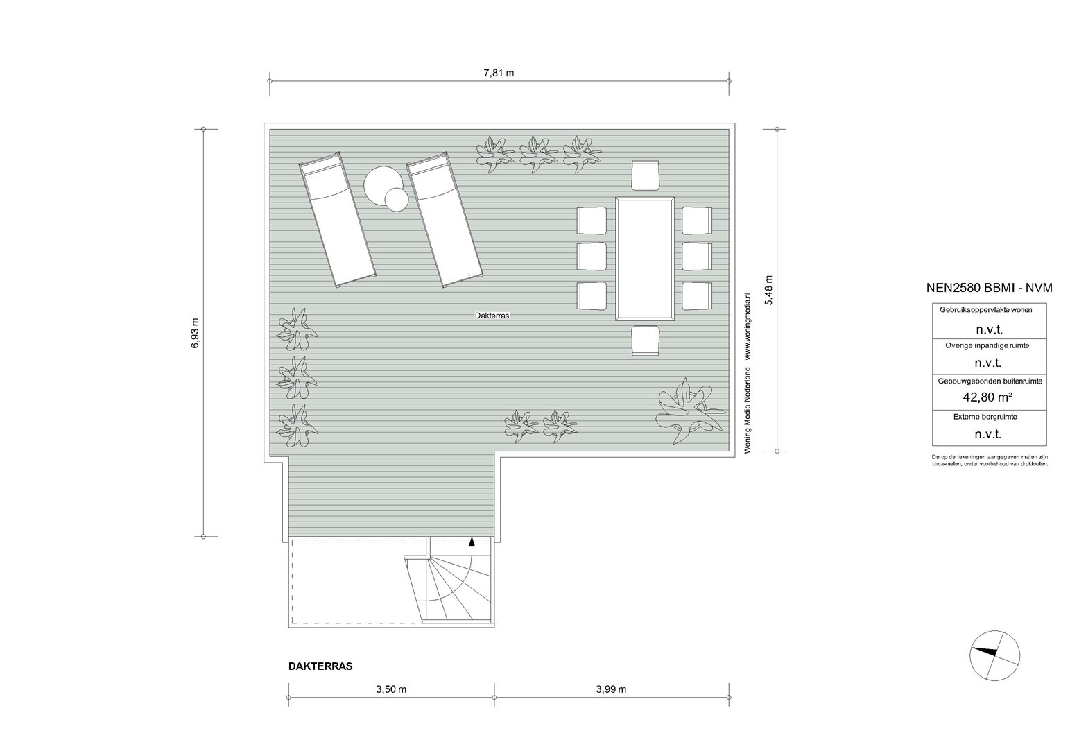
Aan de straatzijde liggen twee slaapkamers, stil en besloten. De hoofdslaapkamer is ruim, met ingebouwde kasten over de volle breedte. Naastliggend bevindt zich de badkamer: ingetogen, met inloopdouche, vrijstaand bad en een dubbele wastafel in kalksteen. Alles is perfect afgewerkt, met ingetogen luxe en praktische indeling. Vanuit de hal loopt een vaste trap omhoog, onder een glazen lichtkap. Boven wacht het dakterras: ruim, beschut en met uitzicht over de lommerrijke wijk. Hier voel je de hoogte van het bovenhuis, het ritme van de stad op afstand. Het is stil, zonnig en onverwacht privé. Een plek die net zo goed ‘buiten’ is als onderdeel van de woning. Terug naar binnen valt op hoe vanzelfsprekend alles aanvoelt. De lift, die je vanuit de stad tot in de woning brengt. De routing, die klopt. De materiaalkeuze, die rust geeft. Dit is geen compromis, maar een overtuiging. Wonen in Volmaaktheid, in het hart van Oud-Zuid.

Buurtgids
Aan het einde van de 19e eeuw, toen de binnenstad van Amsterdam steeds voller werd, groeide de behoefte aan een groene wijk dichtbij het centrum. Op initiatief van Van Eeghen ontwierp architect Zocher in 1881 het Willemspark, dat aan het Vondelpark grenst. Enkele decennia later verrezen daar, rondom de vijvers, de eerste villa’s. Statige panden in klassieke bouwstijlen verwelkomden de gegoede gezinnen in dit rustigere en groenere deel van de stad. De grandeur van toen is nog steeds intact. De meeste gebouwen zijn gerenoveerd en de lanen en het groen, zoals destijds bedacht, zijn volwassen geworden. Zowel de bewoners als het culinaire aanbod van het Vlaamsch Broodhuys, chocolatier Linnick, groenteboer Wessels, sterrenrestaurant Ron Gastrobar, het Franse visrestaurant VISQUE en meerdere traiteurs, geven de residentiële buurt zijn hedendaagse allure. Gelegen tussen het Vondelpark, de Koninginneweg en de Amstelveenseweg, met het Museumkwartier op loopafstand, is dit een unieke oase binnen Amsterdam om te wonen, waar ontspanning en inspiratie altijd dichtbij zijn.

Bij de presentatie van deze woning op onze website, hebben we de leukste hotspots in de buurt verzameld.

Bijzonderheden
•    Gebruiksoppervlakte wonen circa 159 m²
•    Dakterras van circa 43 m²
•    Energielabel A+
•    Lift inpandig
•    Gelegen op eigen grond
•    Volledig gerenoveerd in 2025
•    VvE in oprichting
•    Architect J. Westerman
•    Gemeentelijk beschermd stadsgezicht

Deze informatie is door ons met de nodige zorgvuldigheid samengesteld. Onzerzijds wordt echter geen enkele aansprakelijkheid aanvaard voor enige onvolledigheid, onjuistheid of anderszins, dan wel de gevolgen daarvan. Alle opgegeven maten en oppervlakten zijn slechts indicatief
De Meetinstructie is gebaseerd op de NEN2580. De Meetinstructie is bedoeld om een meer eenduidige manier van meten toe te passen voor het geven van een indicatie van de gebruiksoppervlakte. De Meetinstructie sluit verschillen in meetuitkomsten niet volledig uit, door bijvoorbeeld interpretatieverschillen, afrondingen of beperkingen bij het uitvoeren van de meting.

-------------------------------------------------------

Living in Perfection | A unique penthouse in Amsterdam Zuid offering 159 m² of living space on a single level, complete with a rooftop terrace. The apartment is accessible by lift directly from street level. Fully redeveloped with a thoughtful vision focused on comfort, aesthetics, and craftsmanship, the recent renovation includes bespoke solutions, high-quality installations, and a restrained palette of natural materials. A modern appearance and timeless architecture come together through details such as oak herringbone floors, refined lighting, and a carefully designed living kitchen, two bedrooms, and two bathrooms. With lift access, a sun-filled rooftop terrace, and a location near the Vondelpark, this penthouse forms a well-balanced whole in which all elements come together in harmony.

The full living experience can be explored on our website or by downloading our magazine. Here, it is also possible to conveniently schedule a viewing.

Tour
The journey begins downstairs, along the Oranje Nassaulaan. A stately staircase leads to the shared entrance, where light filters through stained glass. There is also a second entrance at ground level, granting direct access to the lift that opens straight into the apartment — a rare feature for this type of building. Once inside, the tranquillity and clarity of the space are immediately apparent. Oak herringbone floors capture the daylight streaming in from both the front and rear. The living area, positioned at the garden side, flows openly into the kitchen. Executed in warm wood veneer with a freestanding island in light natural stone, every element is tailor-made — from the cabinetry to the softly lit niches. It is a place to cook, converse, read, and unwind without the space ever imposing itself. At the street side lie two bedrooms — quiet and secluded. The primary bedroom is generous, with custom-built wardrobes spanning the full width. Adjacent lies the bathroom: serene in tone, featuring a walk-in shower, freestanding bath, and double limestone washbasin. Everything is finished to perfection, combining understated luxury with thoughtful practicality. From the hallway, a fixed staircase ascends beneath a glass skylight. Above awaits the roof terrace — spacious, sheltered, and offering a view over the leafy neighbourhood. Here, the elevation of the residence can truly be felt: the rhythm of the city at a distance. It is quiet, sunlit, and unexpectedly private — a space that feels as much outside as part of the home. Back indoors, everything feels effortless: the lift that carries one from the street directly into the home, the circulation that makes perfect sense, the materials that create calm. This is not a compromise, but a conviction — Living in Perfection, in the heart of Oud-Zuid.

Neighbourhood
At the end of the nineteenth century, as Amsterdam’s city centre grew increasingly crowded, the desire arose for a green district close to the heart of the city. At the initiative of Van Eeghen, architect Zocher designed the Willemspark in 1881, adjoining the Vondelpark. A few decades later, the first villas appeared around its ponds — stately residences in classical styles, welcoming the city’s affluent families to this calmer and greener enclave. The grandeur of that era remains intact. Most buildings have since been restored, while the original green avenues and landscape design have matured beautifully. The neighbourhood’s charm today is enriched by its residents and its culinary highlights: Vlaamsch Broodhuys, chocolatier Linnick, greengrocer Wessels, Michelin-starred Ron Gastrobar, French seafood restaurant VISQUE, and several refined delicatessens. Situated between Vondelpark, Koninginneweg, and Amstelveenseweg — with the Museum Quarter within walking distance — this part of Amsterdam offers a rare blend of serenity and inspiration, where urban life and tranquillity coexist effortlessly.

The full selection of local highlights can be found on our website presentation of this residence.

Details
• Living area approximately 159 m²
• Rooftop terrace approximately 43 m²
• Energy label A+
• Private lift
• Freehold property
• Completely renovated in 2025
• Homeowners’ association in formation
• Architect: J. Westerman
• Municipal protected cityscape

This information has been compiled with the utmost care. However, no liability is accepted for any inaccuracies, omissions, or their consequences. All measurements and surface areas are indicative only.
The measurement instruction is based on the NEN2580 standard and is intended to ensure a consistent method for calculating surface area. Differences in outcomes may still occur due to variations in interpretation, rounding, or measurement limitations.execution.
Overdracht
Type Te koop
Vraagprijs € 2.980.000 k. k.
Koopconditie k. k.
Aangeboden sinds 3 maart 2026
Bouw
Soort object Appartement
Woningtype Bovenwoning
Bouwperiode A+
Inhoud
Woonoppervlakte 159 m²
Inhoud 563 m³
Indeling
Aantal kamers 3
Aantal slaapkamers 2
Aantal badkamers 2
Luxe kenmerken indoor Lift
Contact
Bedrijfsnaam Broersma Werken en Wonen
Adres Koningslaan 14
1075 AC AMSTERDAM
Nederland
Telefoon 020 305 97 77
Contactpersoon
Naam Broersma Werken en Wonen
Telefoon 020 305 97 77
E-mailadres wonen@broersma.nl
Woningen in de buurt
Back to top