Overslaan en ga direct naar de inhoud
Rapenburg 45
Leiden

Uniek, volledig gerenoveerd monumentaal grachtenpand op absolute toplocatie, met
zonnige en volledig besloten stadstuin

Al in de 17e en 18e eeuw werd het Rapenburg geroemd als één van de mooiste en meest
voorname grachten van Nederland. Tot op de dag van vandaag geldt deze majestueuze
gracht, met haar monumentale panden, statige gevels en karakteristieke bruggen, als
hét kroonjuweel van Leiden.

De historie van dit pand reikt zelfs verder terug: de basis van de gewelfde kelder dateert
uit de 15e eeuw. De percelen Rapenburg 41–45 bevinden zich op de plek van het
voormalige Hieronimusklooster, wat dit object een uitzonderlijke historische
gelaagdheid geeft.

Rapenburg 45 betreft een uitzonderlijk 17e-eeuws rijksmonument, gelegen op één van
de meest prominente en geliefde locaties van de stad. Het pand beschikt over maar
liefst circa 345 m² woonoppervlakte, gecombineerd met een fraai aangelegde, zonnige
stadstuin met volledige privacy – een zeldzaamheid in het historische centrum.

De ligging is onovertroffen: recht tegenover het Rijksmuseum van Oudheden en op
slechts enkele passen van de wereldberoemde Hortus Botanicus. Alle geneugten van
het Leidse stadsleven bevinden zich op loop- en fietsafstand: hoogwaardige winkels,
uitstekende horeca, theaters, musea en cultuur. De directe omgeving wordt gekenmerkt
door particuliere bewoning, rust en discretie.

Sinds de aankoop in 2010 hebben de huidige eigenaren het pand op uitzonderlijk hoog
niveau volledig gerenoveerd en verduurzaamd, met groot respect voor het monumentale
karakter. Zo is een groot deel van de ramen recent voorzien van het allernieuwste
vacuümglas, waardoor dit rijksmonument niet alleen esthetisch indrukwekkend is, maar
ook voldoet aan de hoogste hedendaagse eisen op het gebied van comfort en
energiezuinigheid.

Het interieur ademt historie en klasse, met onder meer fraaie balkenplafonds, een
elegante reeks Delfts Blauwe tegels in de gang en een indrukwekkende monumentale
trap naar de verdiepingen. Een bijzonder historisch detail: dit pand kende door de
eeuwen heen meerdere opmerkelijke bewoners, waaronder prinsessen Beatrix en
Margriet tijdens hun studietijd in Leiden.


INDELING

Begane grond
Ruime en lichte entree. Vanuit hier toegang tot de woonkeuken: een prachtige, sfeervolle
ruimte met twee hoge ramen aan de grachtzijde en openslaande deuren naar de tuin. De
luxe Bulthaup keuken is vanzelfsprekend voorzien van alle hoogwaardige
inbouwapparatuur. Aan de tuinzijde zorgt een brede gashaard voor extra warmte en
ambiance in het eet- en zitgedeelte.

De lange gang voorzien van een stucrelief, onder andere van het familiewapen van
bewoners uit de 18de eeuw, weerszijden van de gang voorzien van Delfts Blauwe tegels,
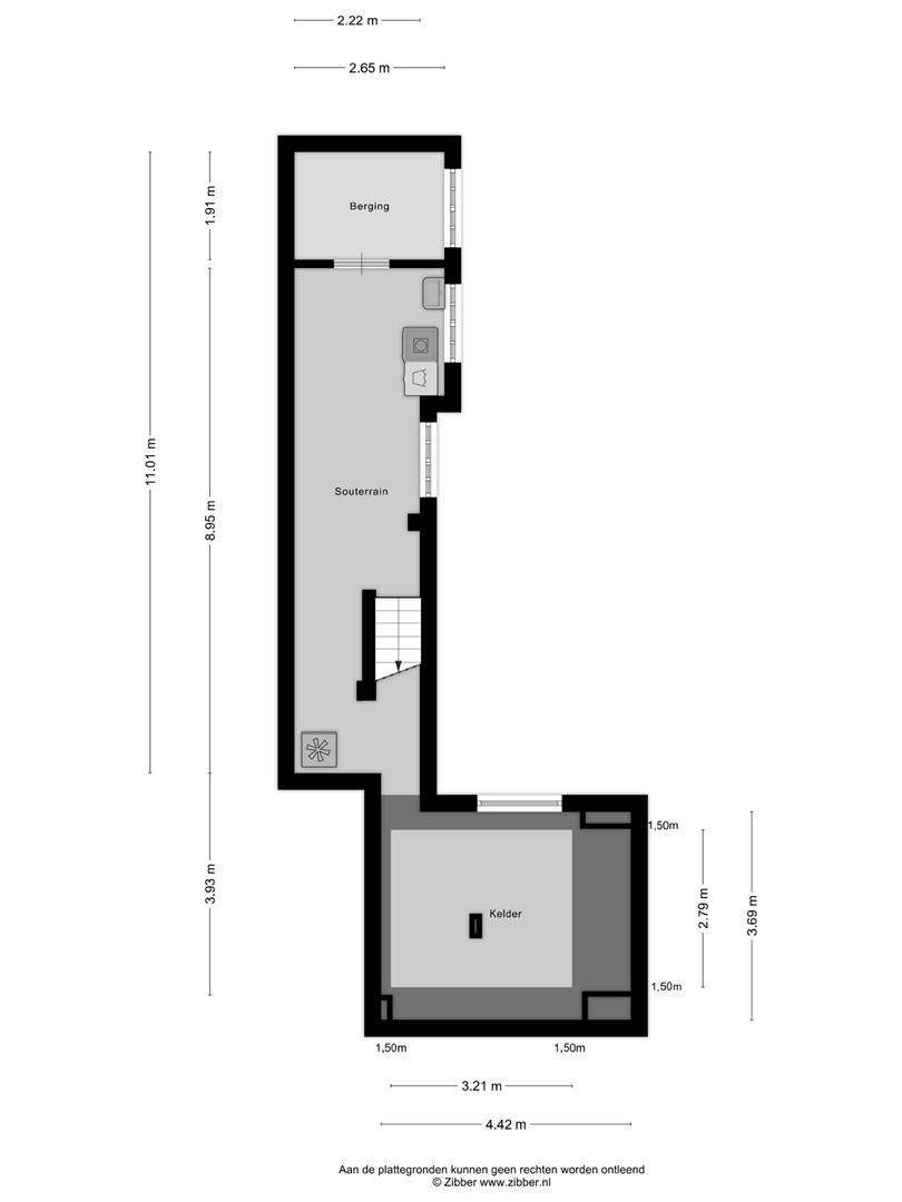
naar een hal met toegang tot de tuin en een trap naar het souterrain. Dit souterrain is
momenteel in gebruik als wasruimte. Aan de straatzijde bevindt zich tevens een
gewelfde kelder, ideaal voor opslag of wijn. Verder treft u op de begane grond een
gastentoilet en aan het einde van de gang een multifunctionele kamer, geschikt als
werk-, speel- of logeerkamer.

Eerste etage
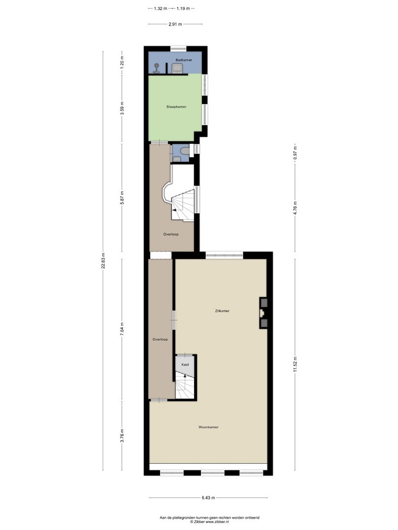
Via de monumentale trap bereikt u de eerste etage. In het achterhuis bevindt zich
een slaapkamer met moderne badkamer en suite, evenals een separaat toilet. In het
voorhuis ligt de indrukwekkende, zeer ruime en lichte woonkamer. Aan de tuinzijde een
intieme zitkamer rondom de haardpartij; aan de voorzijde een royale living, drie ramen
breed, met een schitterend uitzicht over de gracht en het historische stadsbeeld.

Tweede etage
Overloop met vaste kastenwand. Aan de achterzijde bevindt zich de royale
ouderslaapkamer met eigen dakterras, uitgebreide kastenwand en luxe badkamer en
suite. Deze badkamer staat tevens in verbinding met de ruime kamer aan de voorzijde,
thans in gebruik als werkkamer, maar eveneens uitstekend geschikt als volwaardige
slaapkamer.

Derde etage
Overloop, badkamer voorzien van douche en toilet. Aan de voorzijde een bijzonder ruime
en sfeervolle slaapkamer met dakkapel en vaste kast. Hier bevindt zich tevens het luik
met vlizotrap naar de grote zolderruimte, waar onder andere de cv-opstelling is
geplaatst. Aan de achterzijde nog een extra slaapkamer met dakkapel.

Tuin
De fraai aangelegde stadstuin is gelegen op het westen en biedt optimale zonligging. Er
zijn meerdere zitplekken gecreëerd voor zowel zon als schaduw. Opvallend is de
absolute rust aan de achterzijde van het pand: een oase van stilte midden in de stad,
perfect voor ontspannen momenten of lange diners met vrienden en familie.

Parkeren
U kunt op straat parkeren met een parkeervergunning. Unieke mogelijkheid tot het aankopen van 3 parkeerplaatsen in de nabij gelegen
afgesloten parkeergarage. Prijs op aanvraag.

Samengevat
Een buitengewoon stijlvol, historisch én comfortabel grachtenpand van uitzonderlijke
kwaliteit, op een van de mooiste locaties van Nederland. Een zeldzame combinatie van
historie, luxe, privacy en ruimte.


Overdracht
Type Te koop
Vraagprijs € 2.750.000 k. k.
Koopconditie Beschikbaar
Aangeboden sinds 11 februari 2026
Bouw
Soort object Woonhuis
Bouwperiode < 1906
Woning type Tussenwoning
Ligging Aan vaarwater
Inhoud
Woonoppervlakte 345 m²
Inhoud 1322 m³
Perceeloppervlakte 218 m²
Indeling
Aantal kamers 9
Aantal slaapkamers 6
Aantal badkamers 3
Buitenruimte
Tuin 120 m² Achtertuin
Garage 0 m², 3 auto's
Luxe kenmerken indoor Atelier Bijkeuken
Contact
Bedrijfsnaam Graal Makelaardij & Taxaties
Adres Rapenburg 4
2311 EV Leiden
Nederland
Telefoon 071-5161000
Contactpersoon
Naam Graal Makelaardij
Telefoon 071-5161000
Woningen in de buurt
Back to top