Overslaan en ga direct naar de inhoud
TERUG NAAR OVERZICHT
Sarphatipark 122 2
Amsterdam
€ 2.195.000 k. k.
Beschikbaar
Soort woning
Appartement
Oppervlakte
265 m² (0 m²)
Aantal kamers
8 (5 slaapkamers)
Zoekcode
63557
Sarphatipark 122 2
Amsterdam

Parkzicht | Dit ruim ingedeelde drielaags bovenhuis van circa 265 m² ligt aan het Sarphatipark in De Pijp. De woning beschikt over een lichte woonruimte, een functionele keuken, 5 slaapkamers en 2 badkamers. Drie balkons en een royaal dakterras van circa 30 m² zorgen voor een prettige verbinding met buiten. Een verzorgd bovenhuis op eigen grond, op een aantrekkelijke locatie in een geliefde buurt.

De volledige woonbeleving is te ervaren op onze website of download ons magazine. Via onze website kun je ook eenvoudig zelf je bezichtiging inplannen. *See English translation below *

Rondleiding
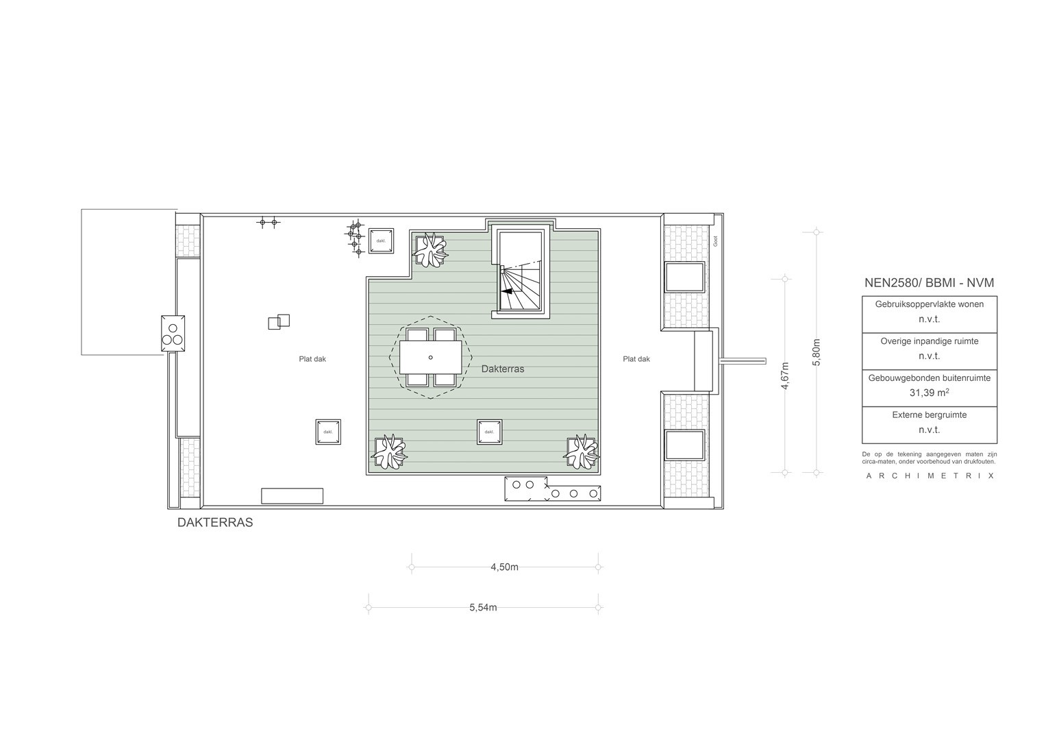
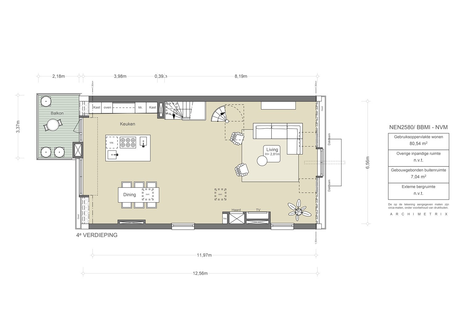
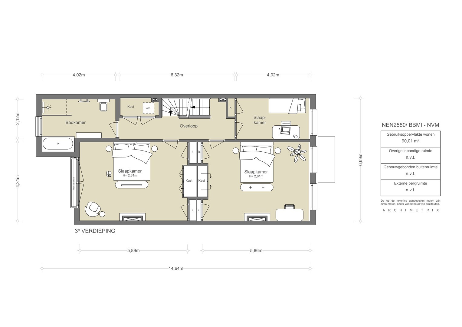
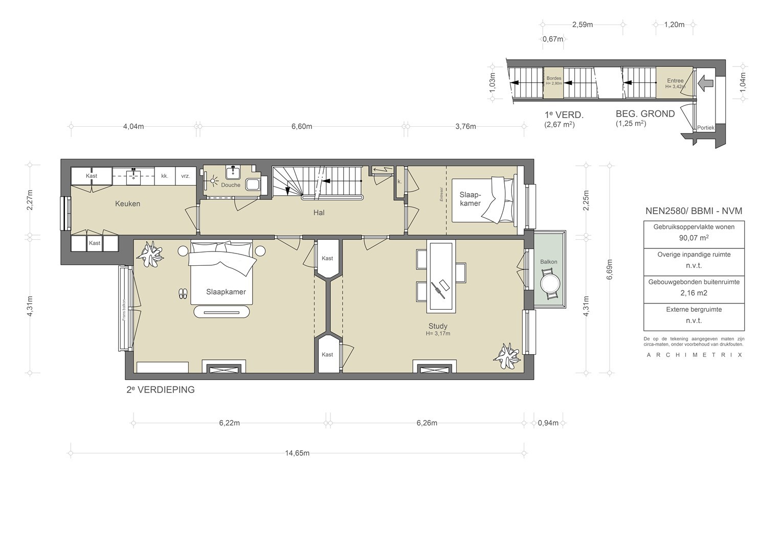
De woning is verdeeld over drie volwaardige woonlagen en een royaal dakterras. Op iedere verdieping is een directe verbinding met buiten. De meest lichte verdieping is ingericht als een open leefruimte met keuken, eetgedeelte en zithoek rond de haard, grenzend aan een terras op het zuiden. Op de tweede verdieping bevinden zich drie kamers met een multifunctionele indeling, geschikt als werk-, logeer- of extra slaapkamers, aangevuld met een pantry en tweede badkamer. De slaapverdieping op de derde etage biedt drie slaapkamers en een luxe uitgevoerde badkamer. Het dakterras van ruim dertig vierkante meter biedt vrij uitzicht en veel zon, waarmee de woning een aangename balans biedt tussen ruimte, licht en comfort.

Wat de bewoners gaan missen
“Door een aantal verbouwingen hebben we dat loftgevoel in de loop van de jaren kunnen versterken. De stoere stalen, plafondhoge open haard is een van de ingrepen die wat dat betreft nog steeds een wow-gevoel oproepen. Heerlijk aan dit huis zijn ook de vele ruime kamers, of we er nu slapen, werken, of muziek maken.”

Buurtgids
Het appartement ligt in stadsdeel Zuid, in het meest gewilde en rustige gedeelte van De Pijp. De Pijp werd eind 19e eeuw aangelegd om huisvesting te bieden aan nieuwkomers die naar de hoofdstad trokken voor werk. De vader van Freddy Heineken opende hier in 1886 de Heinekenbrouwerij. De eerste arbeiderswoningen, rondom de Albert Cuypstraat, werden snel en voordelig gebouwd. Later werden daar, richting de Diamantbuurt, door Berlage huizen in de Amsterdamse School-stijl aan toegevoegd. Er wordt gezegd dat de buurt zijn naam te danken heeft aan de lange rechte straten, die de vorm van een pijp hebben. De Pijp staat bekend om zijn levendigheid en gezellige horeca gelegen heden die allemaal op loopafstand zijn. De Albert Cuypmarkt en het Sarphatipark zijn bepalend voor dynamiek van De Pijp. Kunstenaars en schrijvers zoals Piet Mondriaan, Carel Willink en Gerard Reve woonden en werkten hier. De levendige, gemixte populatie bracht vele cafés en eethuisjes naar de wijk. Tegenwoordig staat de wijk bekend als het Quartier Latin van Amsterdam, met nog steeds veel dynamiek diverse restaurants zoals Samuel's, Badcuyp, de Italiaan Impero Romano, het Franse Arle of Caron. Daarnaast zijn er in de van Woustraat gezellige eettentjes uit allerlei windstreken.

Bij de presentatie van deze woning op onze website, hebben we de leukste hotspots in de buurt verzameld.

Bijzonderheden 
•    Gebruiksoppervlakte wonen circa 265 m²
•    Drie balkons
•    Dakterras met panoramisch uitzicht van circa 30 m² 
•    Aan het Sarphatipark 
•    Gelegen op eigen grond 
•    Energielabel C 
•    VvE in eigen beheer 
•    Gemeentelijk beschermd stadsgezicht

Deze informatie is door ons met de nodige zorgvuldigheid samengesteld. Onzerzijds wordt echter geen enkele aansprakelijkheid aanvaard voor enige onvolledigheid, onjuistheid of anderszins, dan wel de gevolgen daarvan. Alle opgegeven maten en oppervlakten zijn slechts indicatief.

De Meetinstructie is gebaseerd op de NEN2580. De Meetinstructie is bedoeld om een meer eenduidige manier van meten toe te passen voor het geven van een indicatie van de gebruiksoppervlakte. De Meetinstructie sluit verschillen in meetuitkomsten niet volledig uit, door bijvoorbeeld interpretatieverschillen, afrondingen of beperkingen bij het uitvoeren van de meting.

------------------------------------------------

Parkzicht | This well-proportioned three-level upper residence of approximately two hundred sixty-five square metres is located along the Sarphatipark in De Pijp. The home features a bright living area, a functional kitchen, five bedrooms and two bathrooms. Three balconies and a generous roof terrace of approximately thirty square metres create a pleasant connection with the outdoors. A well-maintained upper residence on freehold land, situated in an attractive and sought-after neighbourhood.

The full living experience can be explored on our website or by downloading our magazine. Viewings can easily be scheduled online. See English translation below

Tour
The residence is arranged across three full living levels and a generous roof terrace, with each floor offering a direct connection to the outdoors. The brightest level is designed as an open living space with a kitchen, dining area and sitting area centred around the fireplace, opening onto a south-facing terrace. The second floor comprises three rooms with a multifunctional layout, suitable as workrooms, guest rooms or additional bedrooms, complemented by a pantry and a second bathroom. The third floor serves as the sleeping level, offering three bedrooms and a comfortably appointed bathroom. The roof terrace of over thirty square metres provides open views and abundant sunlight, giving the home a pleasant balance of space, light and comfort.

What the residents will miss
“Through several renovations, we’ve been able to enhance that loft-like feeling over the years. The bold, full-height steel fireplace remains one of those features that still gives us a wow-moment. We also love the many spacious rooms — whether we’re sleeping, working or making music.”

Neighbourhood
The apartment is located in Amsterdam Zuid, in the most sought-after and peaceful part of De Pijp. The neighbourhood was developed in the late nineteenth century to provide housing for newcomers who moved to the capital for work. In 1886, the father of Freddy Heineken opened the Heineken brewery here. The first workers’ homes, built around the Albert Cuypstraat, were constructed quickly and affordably. Later, moving toward the Diamantbuurt, Berlage added residences in the Amsterdam School style. It is said that the neighbourhood owes its name to its long, straight streets, reminiscent of the shape of a pipe. De Pijp is known for its lively atmosphere and the abundance of cafés and eateries, all within walking distance. The Albert Cuyp Market and the Sarphatipark shape much of the neighbourhood’s energy. Artists and writers such as Piet Mondriaan, Carel Willink and Gerard Reve once lived and worked here. The vibrant, mixed population attracted countless cafés and small restaurants to the area. Today, the neighbourhood is often referred to as the Quartier Latin of Amsterdam, still characterised by its dynamic mix of restaurants, including Samuel’s, Badcuyp, the Italian Impero Romano and the French-inspired Arle or Caron. Along the Van Woustraat you will find a wide variety of eateries representing cuisines from around the world.

Our website presentation includes a curated selection of the finest local hotspots.

Details
• Living area approximately two hundred sixty-five square metres
• Three balconies
• Roof terrace of approximately thirty square metres with panoramic views
• Located along the Sarphatipark
• Freehold land
• Energy label C
• Homeowners’ association self-managed
• Situated within a municipally protected cityscape

This information has been compiled with great care. No liability is accepted for any incompleteness, inaccuracies or the consequences thereof. All stated measurements and surface areas are indicative.

The measurement instruction is based on NEN2580, intended to provide a more uniform method of determining usable floor area. Variations in measurement outcomes may still occur due to interpretation differences, rounding or practical limitations during the measurement process.
Overdracht
Type Te koop
Vraagprijs € 2.195.000 k. k.
Koopconditie Beschikbaar
Aangeboden sinds 26 november 2025
Bouw
Soort object Appartement
Inhoud
Woonoppervlakte 265 m²
Inhoud 800 m³
Indeling
Aantal kamers 8
Aantal slaapkamers 5
Aantal badkamers 2
Contact
Bedrijfsnaam Broersma Werken en Wonen
Adres Koningslaan 14
1075 AC AMSTERDAM
Nederland
Telefoon 020 305 97 77
Contactpersoon
Naam Broersma Werken en Wonen
Telefoon 020 305 97 77
E-mailadres wonen@broersma.nl
Woningen in de buurt
Back to top