Overslaan en ga direct naar de inhoud
TERUG NAAR OVERZICHT
Van Baerlestraat 148 2
Amsterdam
€ 1.695.000 k. k.
k. k.
Soort woning
Appartement
Oppervlakte
194 m² (0 m²)
Aantal kamers
7 (4 slaapkamers)
Zoekcode
32802
Van Baerlestraat 148 2
Amsterdam

MAISON LUMIÈRE | Dubbel bovenhuis van bijna 195 m², gelegen in het Museumkwartier. Het bovenhuis beschikt over een lichte kamer-en-suite aan de voorzijde, een luxe woonkeuken, drie ruime slaapkamers, een kinderslaapkamer, twee luxe badkamers, een balkon en een dakterras van circa 33 m² met uitzicht over Amsterdam-Zuid. Gelegen op eigen grond.

De volledige woonbeleving is te ervaren op onze website of download ons magazine. Via onze website kun je ook eenvoudig zelf je bezichtiging inplannen. *See English translation below *

Rondleiding
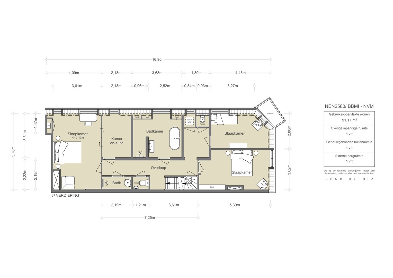
Een klassieke kamer-en-suite vormt het hart van de woonverdieping, met glas-in-loodschuifdeuren, vaste kasten en hoge plafonds van ruim drie meter. Aan de voorzijde een lichte living met erker en zicht op het levendige straatbeeld van de Van Baerlestraat; centraal een eetkamer die in directe verbinding staat met de keuken. Deze strakke woonkeuken combineert modern comfort met klassieke elegantie en is voorzien van diverse inbouwapparatuur. Openslaande deuren geven toegang tot een intiem balkon op het noorden. De visgraatparketvloer en verfijnde detaillering zorgen voor een evenwichtige en elegante beleving.
De slaapverdieping omvat vier slaapkamers, waaronder twee slaapkamers aan de voorzijde. Aan de achterzijde is een derde slaapkamer met airconditioning en toegang tot een extra slaapkamer, ook geschikt als inloopkast of werkruimte. De centraal gelegen badkamer is afgewerkt met antracietkleurige tegels en voorzien van een vrijstaand ligbad, royale inloopdouche, dubbel wastafelmeubel en vloerverwarming. Separaat een wasruimte met extra toilet.
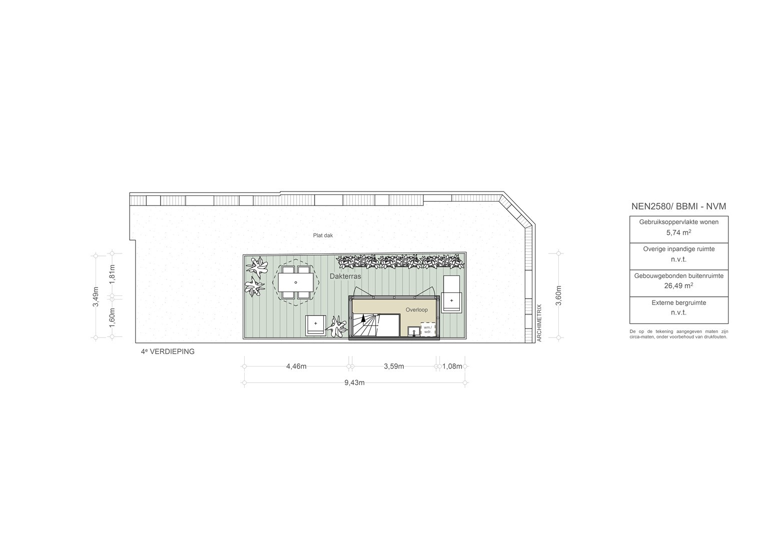
Via moderne zwarte taatsdeuren toegang tot het dakterras van circa 33 m², gelegen op het zuidwesten en voorzien van een kitchenette met koelkast. Een ideale setting voor lange avonden in de zon, met uitzicht over de daken van Amsterdam-Zuid en richting het Museumplein en het Concertgebouw.

Buurtgids
Het appartement ligt op een zeer gewilde locatie in stadsdeel Amsterdam Zuid in het Museumkwartier, vlakbij het Museumplein, tussen de Concertgebouwbuurt, de Pijp en het Centrum. Bekende musea, zoals het Van Gogh, Rijks- en Stedelijk Museum, het Concertgebouw en luxe winkelstraten naast de Van Baerlestraat zoals de Beethovenstraat en de P.C. Hooftstraat liggen om de hoek. Ook de gezellige Pijp met onder andere de beroemde Albert Cuypmarkt is op loopafstand, evenals het Vondelpark, het Sarphatipark en het centrum van de stad. Een ideale plek om heerlijk te wonen, maar met alle voorzieningen binnen handbereik. Goed bereikbaar met het openbaar vervoer (tramlijnen 2 en 5 en vele (nacht)buslijnen) en de auto via de Ring A10 bij de afritten S109 en S108.

Bij de presentatie van deze woning op onze website hebben we de leukste hotspots in de buurt verzameld.

Bijzonderheden
• Gebruiksoppervlakte wonen circa 194 m²
• Dakterras gelegen op het westen van circa 33 m²
• Gelegen op eigen grond
• Energielabel E
• Servicekosten VvE € 300,-- per maand
• Gerenoveerd in 2020
• Gemeentelijk beschermd stadsgezicht

Deze informatie is door ons met de nodige zorgvuldigheid samengesteld. Onzerzijds wordt echter geen enkele aansprakelijkheid aanvaard voor enige onvolledigheid, onjuistheid of anderszins, dan wel de gevolgen daarvan. Alle opgegeven maten en oppervlakten zijn slechts indicatief. De meetinstructie is gebaseerd op de NEN 2580. De meetinstructie is bedoeld om een meer eenduidige manier van meten toe te passen voor het geven van een indicatie van de gebruiksoppervlakte. De Meetinstructie sluit verschillen in meetuitkomsten niet volledig uit, door bijvoorbeeld interpretatieverschillen, afrondingen of beperkingen bij het uitvoeren van de meting.

------------------

MAISON LUMIÈRE | A double upper residence of approximately 195 m², situated in the Museum Quarter. The residence features a bright en-suite living room at the front, a refined open-plan kitchen, three generous bedrooms, a children’s bedroom, two elegant bathrooms, a balcony, and a roof terrace of approximately 33 m² overlooking Amsterdam South. Situated on freehold land.

The full residential experience can be explored on our website or by downloading our magazine. Via our website it is also possible to easily schedule a viewing.

Tour
A classic en-suite living arrangement forms the heart of the living floor, defined by stained-glass sliding doors, built-in cabinetry, and ceilings exceeding three metres in height. At the front lies a bright living room with a bay window overlooking the lively streetscape of the Van Baerlestraat, while the central dining room maintains a direct connection with the kitchen. This sleek open-plan kitchen combines contemporary comfort with classical elegance and is fitted with various built-in appliances. French doors open onto an intimate north-facing balcony. The herringbone parquet floor and refined detailing contribute to a balanced and elegant atmosphere. The sleeping floor comprises four bedrooms, including two bedrooms positioned at the front. At the rear lies a third bedroom equipped with air conditioning and access to an additional room, suitable as a walk-in wardrobe or workspace. The centrally positioned bathroom is finished with anthracite tiles and features a freestanding bathtub, a generous walk-in shower, a double vanity, and underfloor heating. A separate laundry room with an additional toilet completes this level.

Through modern black pivot doors, access is provided to the roof terrace of approximately 33 m², oriented towards the south-west and equipped with a kitchenette with refrigerator. An ideal setting for long evenings in the sun, overlooking the rooftops of Amsterdam South and towards the Museumplein and the Concertgebouw.

Neighbourhood
The apartment is located in a highly sought-after position in Amsterdam South, within the Museum Quarter, close to the Museumplein, between the Concertgebouw district, De Pijp, and the city centre. Renowned museums such as the Van Gogh Museum, Rijksmuseum, and Stedelijk Museum, as well as the Concertgebouw, are within close proximity. Luxury shopping streets, including the Beethovenstraat and the P.C. Hooftstraat, lie just around the corner from the Van Baerlestraat. The vibrant district of De Pijp, with among others the famous Albert Cuyp Market, is within walking distance, as are the Vondelpark, the Sarphatipark, and the historic city centre. A location offering refined urban living with all amenities within reach. Public transport connections are excellent (tram lines two and five and multiple night bus routes), while the Ring A10 can be reached via exits S109 and S108.

On our website, a curated selection of local highlights in the neighbourhood can be explored.

Particulars
• Living area approximately 194 m²
• Roof terrace facing west, approximately 33 m²
• Situated on freehold land
• Energy label E
• Service charges € 300 per month
• Renovated in 2020
• Located within a municipal protected cityscape

This information has been compiled with due care. However, no liability is accepted for any inaccuracies, omissions, or consequences thereof. All stated measurements and surfaces are indicative only. The measurement instruction is based on NEN 2580 and aims to provide a consistent method for indicating the usable floor area. Differences in measurement outcomes cannot be fully excluded due to interpretation differences, rounding, or practical limitations during measurement.
Overdracht
Type Te koop
Vraagprijs € 1.695.000 k. k.
Koopconditie k. k.
Aangeboden sinds 13 maart 2026
Bouw
Soort object Appartement
Woningtype Bovenwoning
Bouwperiode E
Inhoud
Woonoppervlakte 194 m²
Inhoud 762 m³
Indeling
Aantal kamers 7
Aantal slaapkamers 4
Aantal badkamers 2
Buitenruimte
Tuin 33 m²
Garage 0 m², 1 auto's
Contact
Bedrijfsnaam Broersma Werken en Wonen
Adres Koningslaan 14
1075 AC AMSTERDAM
Nederland
Telefoon 020 305 97 77
Contactpersoon
Naam Broersma Werken en Wonen
Telefoon 020 305 97 77
E-mailadres wonen@broersma.nl
Woningen in de buurt
Back to top